\人気の北谷町宮城エリア/年間家賃612万+年間売電約76.5万☀表面利回り5.5%!現状有姿引渡しとなります。物件詳細はお気軽にお電話ください(担当者/コワグチ:080-6491-3373)
物件情報
| 価格 | 1億2,500万円 | 所在階/階数 | - |
|---|---|---|---|
| 建物面積 | 390m² / 117.98坪 | 土地面積 | 293.07m² / 88.65坪 |
| 私道負担 | 無し | 土地権利 | 所有 |
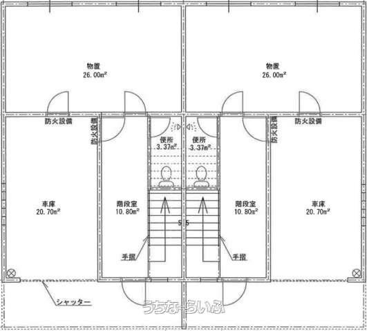
| 間取り | 2LDK ( 洋9.38 洋13.48 LDK31 ※【1階】車庫12.77帖、納戸16.04帖、トイレ2.08帖【2階】LDK31.04帖、家事室2.22帖、トイレ2.22帖【3階】主寝室13.48帖、寝室9.38帖、WC11.5帖、浴室3.11帖) | ペット | 相談 |
| 築年月 | 2011年05月(築14年) | 地目 | 宅地 |
| 引渡し | 相談 | 都市計画 | 市街化区域 |
| 用途地域 | 第一種住居 | 取引態様 | 専属専任媒介 |
| 建ぺい率 / 容積率 | 60% / 200% | 所在地 | 北谷町宮城 地図 |
| 接道方向 / 道路幅員 | 北東13.99m | 構造 | RC(鉄筋コンクリート造) |
| 交通 | 【バス停】浜川漁港前: 徒歩約2分 | 価格備考 | - |
| 更新日 | 2026/04/17 | 公開期限 | 2026/04/30 |
この物件の設備・条件
| 投資収益 | 収益物件 |
|---|---|
| その他条件 | エアコン付 、 ファミリー向き |
物件備考
| 備考 | 【月額賃料およびランニングコスト】 ■3-A:月額賃料 250,000円、管理費 5,500円 ■3-B:月額賃料 260,000円、管理費 5,500円 ■太陽光収入:月平均 63,796円(売電単価42円) 【年間ランニングコスト】 ■賃貸管理費:132,000円 ■太陽光解体積立金等:30,935円 ■固定資産税:314,237円 年間経費合計:477,172円 【注意事項】 ・所有権移転登記費用、契約書に貼付する印紙税は買主様のご負担となります。 ・本物件は現状有姿での引渡しとし、契約不適合責任は免責といたします。 ・本物件に付帯する太陽光発電設備については売買代金に含まれず、無償譲渡といたします。 なお、当該設備に関する不具合・故障・収益の変動等について、売主は一切の責任を負わないものとし、買主はこれを了承のうえ取得するものとします。 |
|---|
【掲載物件について】
・「うちなーらいふ」は、より正確な情報の提供を心がけておりますが、物件情報に誤りがある場合は、ご連絡をお願い致します。
・ご報告いただいた内容につきましては、掲載提供元である不動産会社に直接送信させていただきます。情報が不足している場合や、事実確認ができない場合などは対応できない場合がございます。
・本フォームは物件情報の誤りに関する報告専用です。賃貸・売買に関するお問い合わせには対応しておりませんので、あらかじめご了承ください。
こちらをクリックして物件の間違いを報告する。(株)レキオス
| 住所 | 沖縄県宜野湾市志真志 4-30-6 地図 |
|---|---|
| 営業時間 | 10:00〜18:00 |
| 定休日 | GW・日・土(事前予約対応)、祝祭日、旧盆、年末年始(12/29-1/3) |
| 免許 | 沖縄県知事免許(6)第3112号 |














