★築浅物件☆大幅値下げしました!!( ゚Д゚)年間収入1620万円!!表面利回り4.77%です!!価格交渉頑張ります!!是非お問い合わせください!!モノレール美栄橋駅徒歩3分の好立地です!!現在満室で定期借家契約で賃貸中です!!1階居酒屋店舗、1Rタイプ13室・1LDKタイプ1室です!!現在ワンルームタイプは定期借家の賃貸中のお部屋とマンスリーマンションで満室運営中です!!(現在満室)ご興味ある方、まずはご連絡下さい!!
 売アパート・売店舗那覇市久茂地2丁目 116.33㎡
売アパート・売店舗那覇市久茂地2丁目 116.33㎡
価格 3億4,000万円
パノラマ画像
物件情報
| 価格 | 3億4,000万円 | 所在階/階数 | - | 
|---|---|---|---|
| 建物面積 | 495.26m² / 149.82坪 | 土地面積 | 116.33m² / 35.19坪 | 
| 私道負担 | 無し | 土地権利 | 所有 | 
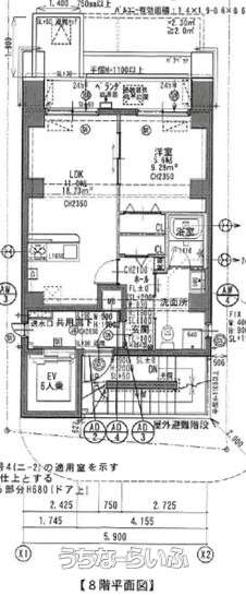
| 間取り | 1ルーム | ペット | 可 | 
| 築年月 | 2019年(築6年) | 地目 | 宅地 | 
| 引渡し | 相談 | 都市計画 | 市街化区域 | 
| 用途地域 | 商業 | 取引態様 | 専属専任媒介 | 
| 建ぺい率 / 容積率 | 80% / 400% | 所在地 | 那覇市久茂地2丁目 地図 | 
| 接道方向 / 道路幅員 | - | 構造 | RC(鉄筋コンクリート造) | 
| 交通 | 【モノレール】美栄橋駅: 徒歩約3分 【バス停】若松入口: 徒歩約3分 | 価格備考 | ※価格交渉頑張ります 営業部 中島 大輔までお問い合わせください。宜しくお願い致します。 | 
| 更新日 | 2025/10/30 | 公開期限 | 2025/11/12 | 
この物件の設備・条件
| 投資収益 | 収益物件 | 
|---|---|
| その他条件 | バス/トイレ別 、 エアコン付 、 オートロック 、 家賃保証 、 エレベーター 、 一人暮らし向き | 
物件備考
| 備考 | ※美栄橋駅近く、久茂地の好立地に収益物件でました!1階居酒屋店舗、1Rタイプ13室、1LDKタイプ1室!ご興味ある方、まずはご連絡下さい!! ※価格交渉頑張ります!! ※営業部 中島 大輔までお問い合わせください。宜しくお願い致します!! | 
|---|
【うちなーらいふ】は、より正確な情報の提供を心がけておりますが、物件情報に誤りがある場合は、ご連絡をお願い致します。
ご報告いただいた内容につきましては、掲載提供元である不動産会社に直接送信させていただきます。情報が不足している場合や、事実確認ができない場合などは対応できない場合がございます。
間違いを報告する
 住居用
 住居用 事業用
 事業用 土地
 土地 駐車場
 駐車場 土地
 土地 マンション
 マンション 一戸建て
 一戸建て その他
 その他






































