築浅のオーシャンビュー、米賃中 賃料45万円 利回5.8%✨米賃、民泊、セカンドハウスなど利用用途は多数✨SNSフォロワー数2万人以上、Google口コミ高評価、南部~北部まで7拠点展開中!
物件情報
| 価格 | 9,300万円 | 所在階/階数 | - |
|---|---|---|---|
| 建物面積 | 100.64m² / 30.44坪 | 土地面積 | 239m² / 72.29坪 |
| 私道負担 | - | 土地権利 | 所有 |
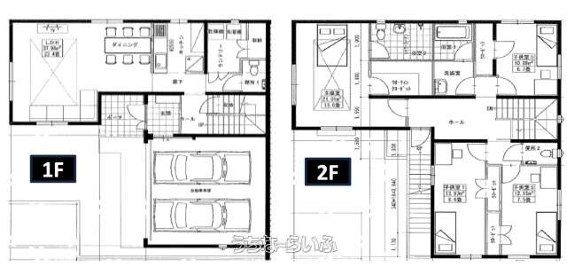
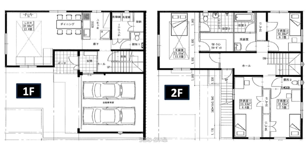
| 間取り | 4LDK ( 洋13 洋8.6 洋7.5 洋6.7 LDK23.4 ※オーシャンビュー、屋根付駐車場) | ペット | - |
| 築年月 | 2024年06月(築1年) | 地目 | 宅地 |
| 引渡し | 相談 | 都市計画 | 都市計画区域外 |
| 用途地域 | 無指定 | 取引態様 | 仲介 |
| 建ぺい率 / 容積率 | 70% / 400% | 所在地 | 金武町金武 地図 |
| 接道方向 / 道路幅員 | 南西4.5m | 構造 | RC(鉄筋コンクリート造) |
| 交通 | - | 価格備考 | - |
| 更新日 | 2026/02/12 | 公開期限 | 2026/02/25 |
この物件の設備・条件
| 投資収益 | 収益物件 |
|---|
物件備考
| 備考 | ■現況: 賃貸中(賃貸中につき案内不可) 月額賃料に下記が含まれております。詳細はお問い合わせください ・水道光熱費 ・ゴミ回収費 ・ネット代 \*ミンサーハウスについて*/ リクルートSUUMO(沖縄県担当)、大手金融機関など、沖縄特化の住宅・金融のプロが専門性の高い情報提供にこだわって伴走いたします! 「お客様に具体的に提供できるサービスの量と質を追求することが、お客様の満足度の高い物件購入と永く安心できる暮らしにつながると考えております」 非常にありがたいことに、Instagram、TikTokの総フォロワー数は1万人以上と「ミンサーハウス」は非常に多くのうちなんちゅに知って頂いております! そして、多くのお客様に契約頂いており、Google口コミ(当社の口コミにサクラは一切おりません)では過去に購入頂いた方から具体的な評価を頂いていますので、ぜひ一度「ミンサーハウス 本店」の評価コメントをチェックしてみてください✓ \*ミンサーハウスのこだわり*/ 1.長期的で具体的なライフプラン設計 2.その物件のディープな情報提供(犯罪件数、最大震度予測など) 3.建築観点での物件の魅力・注意点の共有 4.期待以上の対応スピードと高い誠実性 \*成約特典に関して*/ 「お引渡し後の資産運用、節税対策、各種補助金などの無料相談サポート!」 \*営業拠点のご紹介*/ 北部~南部まで沖縄県内7拠点展開中!本島内であればどこでも対応可能です! 事前予約で年中24時間、物件案内・購入相談可能です! 「那覇浦添本店」「那覇久茂地店」「浦添パルコ店」「沖縄ライカム店」 「読谷ローヤルホテル店」「読谷残波岬店」「名護宮里店」 \*こんなご状況の方もぜひご相談ください*/ ・沖縄で木造建築は大丈夫?戸建とマンションどっちがいいの? ┗┗お客様のご状況に合わせて、忖度なく両方のメリット・デメリットをお伝えさせていただきます! ・ぼんやり住宅購入を検討し始めて、何から始めたら良いか分からない方 ┗ 一から住宅探しの基本をお伝えし、資金計画から様々な選択肢を提案します。 ・ 賃貸で住み続けるか、お家を購入すべきか悩んでいる方 ┗人生を豊かに、家族を守るために、賃貸で住み続けることも必要な選択肢になります。忖度なく、お客様のご状況に合わせてお話しさせていただきます。 ・ 注文住宅 or 新築マンション or 新築建売など、まだ悩んでいる方 ┗大手金融機関・ハウスメーカー・リクルート(SUUMO)など、多様で経験のあるスタッフが在籍しています。不動産だけではなく建築や金融の知識も豊富なため、様々な選択肢からお客様の最善の選択をお手伝いいたします。 ・住宅ローンが借り入れ出来るか心配な方 ┗自営業者、他に借入がある方、転職したばかりの方など、遠慮なくご相談ください! \*物件お問い合わせの特典*/ 【特典①】 購入価格だけではなく、購入後に住み始めるまでにかかるすべての費用を記載した資金計画書をお送りいたします! 【特典②】 グーホームに書ききれないマニアックな物件情報(最大震度予測、津波災害など)をまとめた物件レポートをお送りいたします! 【特典③】 [ファイナンシャルプランナー1級資格者による無料資金相談(任意)] FP1級資格者の福本による資金相談を無料で受けられます。人生において最大のお買い物です、納得感をもって購入できるようにサポートします! ※もっと詳しく知りたい方は、ミンサーハウスのホームページ、instagramをチェックしてみてください✓ |
|---|
【うちなーらいふ】は、より正確な情報の提供を心がけておりますが、物件情報に誤りがある場合は、ご連絡をお願い致します。
ご報告いただいた内容につきましては、掲載提供元である不動産会社に直接送信させていただきます。情報が不足している場合や、事実確認ができない場合などは対応できない場合がございます。
間違いを報告する




























