令和6年3月完成!★人気の松尾エリアのペット可物件★1棟売り年間収入(満室時)14,676,000円
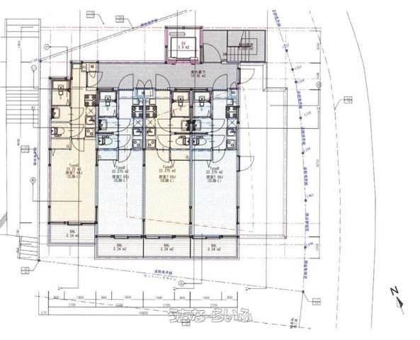
◎満室時表面利回り5.0%! 1K:15室 1LDK:2室 駐車場:2台(敷地内) お気軽にお問合せください!
売マンション那覇市松尾1丁目 246.95㎡
価格 2億9,350万円
物件情報
| 価格 | 2億9,350万円 | 所在階/階数 | - |
|---|---|---|---|
| 建物面積 | 496.1m² / 150.07坪 | 土地面積 | 246.95m² / 74.7坪 |
| 私道負担 | 無し | 土地権利 | 所有 |
| 間取り | - | ペット | 可 ※ペット種類、匹数、応相談 |
| 築年月 | 2024年03月(築1年) | 地目 | 宅地 |
| 引渡し | - (建物完成時) | 都市計画 | 市街化区域 |
| 用途地域 | 第一種住居 | 取引態様 | 専任媒介 |
| 建ぺい率 / 容積率 | 60% / 200% | 所在地 | 那覇市松尾1丁目 |
| 接道方向 / 道路幅員 | 東4m、 南4.08m | 構造 | S造(鉄骨構造) |
| 交通 | 【モノレール】県庁前駅: 徒歩約8分 | 価格備考 | 表示価格:土地価格+建物価格(消費税) 管理契約条件付 プランに関して軽微な変更の可能性あり 那覇広域都市計画区域、市街化区域、特別用途地区:松尾文教地区 立地適正化区域(居住環境形成区域、A)拠点区域(都市機能誘導区域)中心拠点 |
| 更新日 | 2025/10/27 | 公開期限 | 2025/11/09 |
この物件の設備・条件
| その他条件 | バス/トイレ別 、 エアコン付 、 オートロック 、 エレベーター |
|---|
物件備考
| 備考 | 令和6年3月完成!★人気の松尾エリアのペット可物件★1棟売り年間収入(満室時)14,676,000円 ◎満室時表面利回り5.0%! 1K:15室 1LDK:2室 駐車場:2台(敷地内) お気軽にお問合せください! |
|---|
【うちなーらいふ】は、より正確な情報の提供を心がけておりますが、物件情報に誤りがある場合は、ご連絡をお願い致します。
ご報告いただいた内容につきましては、掲載提供元である不動産会社に直接送信させていただきます。情報が不足している場合や、事実確認ができない場合などは対応できない場合がございます。
間違いを報告する



















