この物件についてお問い合わせ営 月-金 09:00〜17:00 土 09:00〜13:00 ※土曜のみは完全予約制、電話は自動応答対応です。来店・物件内覧・不動産相談は金曜までにご予約下さい。 定 日曜・祝日 ※事前予約で営業時間外の対応可
【築浅 沖縄市知花外人住宅 BIGタイプ】現在満室、オーナーチェンジ物件 年間家賃収入438万 !賃貸中(2戸連棟タイプ)、築8年/1階ガレージ付3階建、人気の連棟式タイプの物件です。2戸連棟タイプは賃貸で貸したり、空いたら自己居住用で利用したりと活用方法に柔軟性があります。本物件は売主が課税事業者のため、建物価格に消費税が含まれております。下記備考をご確認ください。詳細はお気軽にお問合せください。
外人住宅(2戸連棟)沖縄市知花4丁目 219.12㎡
価格 7,790万円
物件情報
| 価格 | 7,790万円 | 所在階/階数 | - |
|---|---|---|---|
| 建物面積 | 277.38m² / 83.91坪 | 土地面積 | 219.12m² / 66.28坪 |
| 私道負担 | 無し | 土地権利 | 所有 |
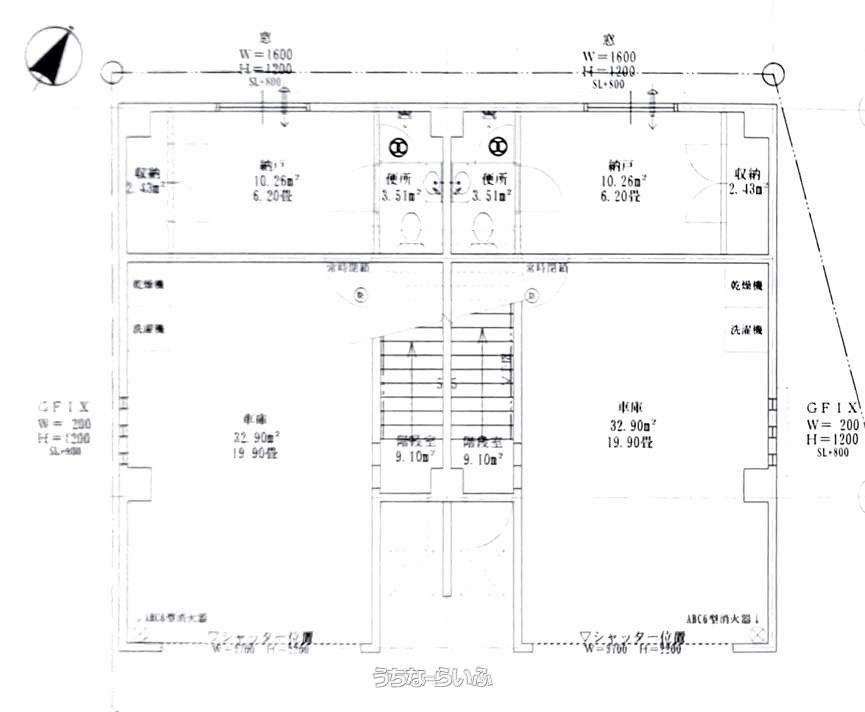
| 間取り | 2LDK ( 洋9 洋6 LDK20 ※1階車庫+納戸収納) | ペット | - |
| 築年月 | 2017年07月(築8年) | 地目 | 宅地 |
| 引渡し | 相談 | 都市計画 | 市街化区域 |
| 用途地域 | 準工 | 取引態様 | 仲介 |
| 建ぺい率 / 容積率 | 60% / 200% | 所在地 | 沖縄市知花4丁目 地図 |
| 接道方向 / 道路幅員 | 南東6m | 構造 | RC(鉄筋コンクリート造) |
| 交通 | 【バス停】白川: 徒歩約11分 | 価格備考 | 契約時に必要なもの:手付金、印紙代3万円 決済時に必要なもの:登記費用(買主負担)、仲介料 |
| 更新日 | 2026/05/06 | 公開期限 | 2026/05/19 |
この物件の設備・条件
| その他条件 | エアコン付 、 ファミリー向き |
|---|
物件備考
| 備考 | 米軍賃貸 満室 通称BIGと呼ばれ、1階の車庫+収納が広いタイプの建築仕様 ※こちらの開発分譲エリア内は、土地所有権と定期借地権(期限満了時は更地返還)があります。各物件の内容で価格が異なります。 本物件は土地所有権ですので一般的に銀行融資が受けやすいです。 引渡し時の名義書換え料100万円も不要です。借地料の値上げ等もなく安心です。 ■現況: 賃貸中(現在満室) 現在賃料 連棟タイプ 18.5万円、18万円 計36.5万円/月(438万円/年) ■賃貸管理料 15,675円/税込(月/2世帯) ■環境維持管理費 3,000円(月) ■固定資産税 266,200円(年間)令和6年度 (概算経費合計:調査中/年) ■本物件は売主が課税事業者のため、建物価格に消費税が含まれております。内訳は、下記の通り仮計算しております。内訳相談可能です。 物件価格:7,790万円(税込) 物件価格:71,653,818円(税別) 内訳: ・建物価格 57,708,000円(うち消費税 5,246,182円) ・土地価格 19,192,000円 ※「税込」は建物分に消費税を加算、土地分は非課税です。 ----------------------------------------------------------------- ★★「売却を迷っている方へ。まずは無料の価格査定からはじめませんか?」★★ 「そろそろ売ったほうがいいのかな」「今の価格だけ知りたい」――そんな段階でも、当社の無料査定をご利用いただけます。周辺の成約事例や最新の市況データをもとに、経験豊富なプロが現在の適正価格をわかりやすくご提案。査定後に売却を迫ったり、しつこい営業を行うことは一切ございません。 【無料査定のポイント】 ・机上査定・訪問査定どちらも完全無料 ・成約事例と市場動向を反映した根拠ある査定価格 ・売却時期やローン残債のご相談も無料で対応 ・ご希望がない限り、査定後の電話・訪問営業は行いません 【こんな方におすすめ】 相続・住み替えなどで「まずは価格だけ知りたい」方、空き家・空き地を持て余している方、他社査定に疑問がある方や、「ご近所に知られずに売却したい」方は、ぜひ一度「無料査定希望」とご連絡ください。 トーマ不動産 (株) TEL 098-911-6533 那覇市宇栄原942-1 ※小禄支所から宇栄原団地向け200m左手 ★お気軽にどうぞ! ------------------------------------------------------------------ |
|---|
【掲載物件について】
・「うちなーらいふ」は、より正確な情報の提供を心がけておりますが、物件情報に誤りがある場合は、ご連絡をお願い致します。
・ご報告いただいた内容につきましては、掲載提供元である不動産会社に直接送信させていただきます。情報が不足している場合や、事実確認ができない場合などは対応できない場合がございます。
・本フォームは物件情報の誤りに関する報告専用です。賃貸・売買に関するお問い合わせには対応しておりませんので、あらかじめご了承ください。
こちらをクリックして物件の間違いを報告する。トーマ不動産 (株)
| 住所 | 沖縄県那覇市宇栄原 942-1 1階 地図 |
|---|---|
| 営業時間 | 月-金 09:00〜17:00 土 09:00〜13:00 ※土曜のみは完全予約制、電話は自動応答対応です。来店・物件内覧・不動産相談は金曜までにご予約下さい。 |
| 定休日 | 日曜・祝日 ※事前予約で営業時間外の対応可 |
| 免許 | 沖縄県知事免許(3)第4321号 |


















