中城村の閑静な住宅街!現在160,000円で賃貸中!利回り4.5%!
その他中城村新垣 167.36㎡
価格 4,227万円
物件情報
| 価格 | 4,227万円 | 所在階/階数 | - |
|---|---|---|---|
| 建物面積 | 112.4m² / 34坪 | 土地面積 | 167.36m² / 50.62坪 |
| 私道負担 | - | 土地権利 | 所有 |
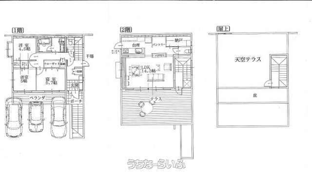
| 間取り | 3LDK ( 洋5.7 洋5 洋4.5 LDK14.3) | ペット | - |
| 築年月 | 2018年(築7年) | 地目 | 宅地 |
| 引渡し | 相談 | 都市計画 | 市街化調整区域 |
| 用途地域 | 無指定 | 取引態様 | 仲介 |
| 建ぺい率 / 容積率 | 50% / 100% | 所在地 | 中城村新垣 |
| 接道方向 / 道路幅員 | - | 構造 | その他 |
| 交通 | - | 価格備考 | - |
| 更新日 | 2025/10/27 | 公開期限 | 2025/11/09 |
物件備考
| 備考 | - |
|---|
【うちなーらいふ】は、より正確な情報の提供を心がけておりますが、物件情報に誤りがある場合は、ご連絡をお願い致します。
ご報告いただいた内容につきましては、掲載提供元である不動産会社に直接送信させていただきます。情報が不足している場合や、事実確認ができない場合などは対応できない場合がございます。
間違いを報告する(有)リケンオキナワ
| 住所 | 沖縄県那覇市牧志 1-4-27 共立マンションI牧志202 地図 |
|---|---|
| 営業時間 | 10:00〜18:00 |
| 定休日 | 土曜日・日曜日・公休日・GW・年末年始 |
| 免許 | 沖縄県知事免許(5)第3570号 |













