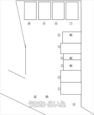
安里三叉路近く 軽自動車専用です 2/10より駐車可能
賃貸駐車場那覇市安里 安里山城契約駐車場
賃料1.3万円
物件情報
| 賃料(月) | 1.3万円 | 空き台数 | 1台 |
|---|---|---|---|
| 手数料 | 1.43万円 | 保証金 | - |
| 料金備考 | - | ||
| 車庫証明 | 不可 | 所在地 | 那覇市安里 地図 |
| 保証会社 | 加入要 フェアー信用保証加入 | ||
| 更新日 | 2026/02/12 | 公開期限 | 2026/02/25 |
この物件の設備・条件
| その他 | アスファルト舗装 、 平置き |
|---|
物件備考
| 備考 | 空き区画⑦番のみ募集中 |
|---|
【うちなーらいふ】は、より正確な情報の提供を心がけておりますが、物件情報に誤りがある場合は、ご連絡をお願い致します。
ご報告いただいた内容につきましては、掲載提供元である不動産会社に直接送信させていただきます。情報が不足している場合や、事実確認ができない場合などは対応できない場合がございます。
間違いを報告するファミリー住宅
| 住所 | 沖縄県那覇市安里 2-4-30 地図 |
|---|---|
| 営業時間 | 月ー金 09:00〜18:00 土 09:00〜17:00 |
| 定休日 | 土曜(第2・第4)日曜・祝祭日 年末年始 |
| 免許 | 沖縄県知事免許(9)第2122号 |





