※法人契約不可※
コンパクトカークラスまで。
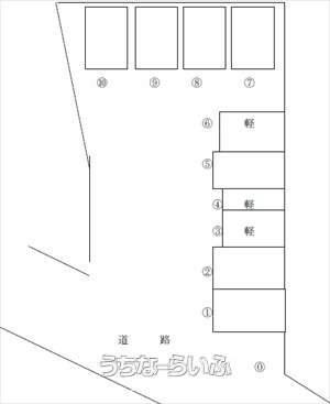
賃貸駐車場那覇市安里3丁目 リーブル安里駐車場
賃料1.1万円
物件情報
| 賃料(月) | 1.1万円 | 空き台数 | 1台 |
|---|---|---|---|
| 手数料 | 1.1万円 | 保証金 | 1.1万円 |
| 料金備考 | - | ||
| 車庫証明 | 不可 | 所在地 | 那覇市安里3丁目 地図 |
| 保証会社 | 加入要 家賃総額の80%(初回のみ)入居者が使用する事になった際には、1か月後に解約になります。 | ||
| 更新日 | 2026/02/16 | 公開期限 | 2026/03/01 |
物件備考
| 備考 | - |
|---|
【うちなーらいふ】は、より正確な情報の提供を心がけておりますが、物件情報に誤りがある場合は、ご連絡をお願い致します。
ご報告いただいた内容につきましては、掲載提供元である不動産会社に直接送信させていただきます。情報が不足している場合や、事実確認ができない場合などは対応できない場合がございます。
間違いを報告する



