✨クリニックや飲食等いかがでしょうか✨駐車場22台🚗💨
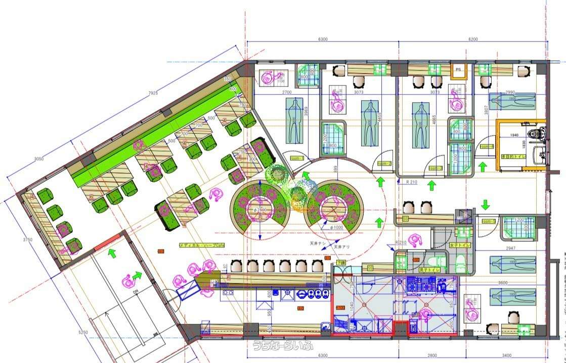
賃貸店舗メディカルガーデンプレイス 那覇市安謝1丁目
賃料180万円
物件情報
| 家賃 | 180万円 | 共益費 | ナシ |
|---|---|---|---|
| 床面積 | 211m² / 63.82坪 | ||
| 敷金/礼金 | ナシ/2ヶ月 | 保証金 | 6ヶ月 |
| 仲介手数料 | - | ||
| 料金備考 | ※契約期間3年間、以後自動更新 ※税抜価格での表示となっております‼️ | ||
| 部屋番号 | - | 所在階/階数 | 2階 (地上3階/地下1階建) |
| 物件種目 | 賃貸店舗 | 取引態様 | 仲介 |
| 契約期間 | 定期借家契約 (3年) | 更新料 | 1ヶ月 |
| 保証会社 | - | ||
| 入居 | 相談 | ||
| 駐車場 | 22台無料 ※正門前駐車場24時間、裏門前駐車場朝~18:00まで | 所在地 | 那覇市安謝1丁目 地図 |
| 交通 | 【モノレール】古島駅: 徒歩約11分 【バス停】安謝一丁目: 徒歩約1分 | 築年月 | 2002年12月(築23年) |
| 間取り備考 | - | ||
| 更新日 | 2026/03/27 | 公開期限 | 2026/04/09 |
この物件の設備・条件
| 状態 | 居抜き |
|---|---|
| 内装・設備 | 男女別トイレ 、 厨房設備 |
| 設備備考 | ・設備:現状の設備は無料で使用可、修繕費は借主負担となります。・内装は現状渡し、解約時は原状回復かスケルトンで返却となります。 |
物件備考
| 備考 | ☆お気軽にお問い合わせください☆ |
|---|
【掲載物件について】
・「うちなーらいふ」は、より正確な情報の提供を心がけておりますが、物件情報に誤りがある場合は、ご連絡をお願い致します。
・ご報告いただいた内容につきましては、掲載提供元である不動産会社に直接送信させていただきます。情報が不足している場合や、事実確認ができない場合などは対応できない場合がございます。
・本フォームは物件情報の誤りに関する報告専用です。賃貸・売買に関するお問い合わせには対応しておりませんので、あらかじめご了承ください。
こちらをクリックして物件の間違いを報告する。

































