なななんと!! 厨房設備付き!! ♦那覇・新都心エリアに大型賃貸物件♦通り沿いに看板もあります♦バリアフリーに配慮されたお洒落な内装◆◇各個室にシャワールーム完備!!
\\那覇国際高校前 大型賃貸物件// \\入り口スロープ・多目的トイレ完備・裏手にエレベーター完備★//
賃貸店舗メディカルガーデンプレイス 1F 2F号 那覇市安謝1丁目
賃料180万円
物件情報
| 家賃 | 180万円 | 共益費 | ナシ |
|---|---|---|---|
| 床面積 | 211.411m² / 63.95坪 | ||
| 敷金/礼金 | ナシ/2ヶ月 | 保証金 | 8ヶ月 |
| 仲介手数料 | 1ヶ月 | ||
| 料金備考 | 現状引き渡し★ | ||
| 部屋番号 | 2F号 | 所在階/階数 | 1階 (地上3階/地下1階建) |
| 物件種目 | 賃貸店舗 | 取引態様 | 専属専任媒介 |
| 契約期間 | 定期借家契約 (2年) | 更新料 | 1ヶ月 |
| 保証会社 | 利用可 契約時:別途火災保険加入あり 保証委託 仲介手数料 1,800,000円 (税込み)※2年定期借家契約後、再契約料時 1,800,000円 | ||
| 入居 | 相談 | ||
| 駐車場 | 22台無料 ※店舗前・第二駐車場 (第二駐車場のみ7:00-18:00まで) | 所在地 | 那覇市安謝1丁目 地図 |
| 交通 | 【モノレール】古島駅: 徒歩約11分 | 築年月 | 2002年12月(築23年) |
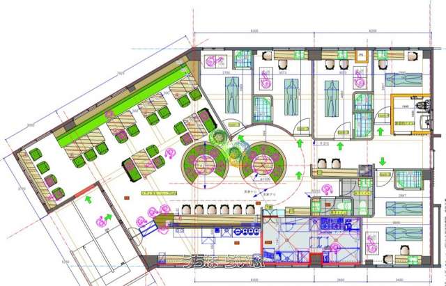
| 間取り備考 | マッサージルーム6室・厨房・カフェスペース・事務室・トイレ三か所 | ||
| 更新日 | 2026/03/31 | 公開期限 | 2026/04/13 |
この物件の設備・条件
| 状態 | 居抜き |
|---|---|
| 内装・設備 | エアコン (冷暖房あり) 、 換気口あり 、 トイレ 、 男女別トイレ |
| 特徴・その他 | 飲食店可 |
物件備考
| 備考 | ★シャワー室付・個室複数室完備!! ★店舗前・店舗後ろ第二駐車場 完備!! ★入り口スロープ・多目的トイレ・エレベーター完備 ★キッチンスペース有 |
|---|
【掲載物件について】
・「うちなーらいふ」は、より正確な情報の提供を心がけておりますが、物件情報に誤りがある場合は、ご連絡をお願い致します。
・ご報告いただいた内容につきましては、掲載提供元である不動産会社に直接送信させていただきます。情報が不足している場合や、事実確認ができない場合などは対応できない場合がございます。
・本フォームは物件情報の誤りに関する報告専用です。賃貸・売買に関するお問い合わせには対応しておりませんので、あらかじめご了承ください。
こちらをクリックして物件の間違いを報告する。




































