🐬海ちゅのまち!!⛵糸満漁港近く、近隣には飲食店が数多く立ち並ぶエリアです。
以前は居酒屋🍺🍶で長らく営業していました。店内にはカウンターや椅子、座卓、棚等の備品があります。
また、飲食店以外の用途変更もご相談できるので、ぜひ内覧下さいませ。お問い合わせお待ちしております。➿
賃貸店舗・その他House 1956 1階号
賃料10万円
物件情報
| 家賃 | 10万円 | 共益費 | ナシ |
|---|---|---|---|
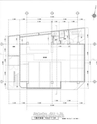
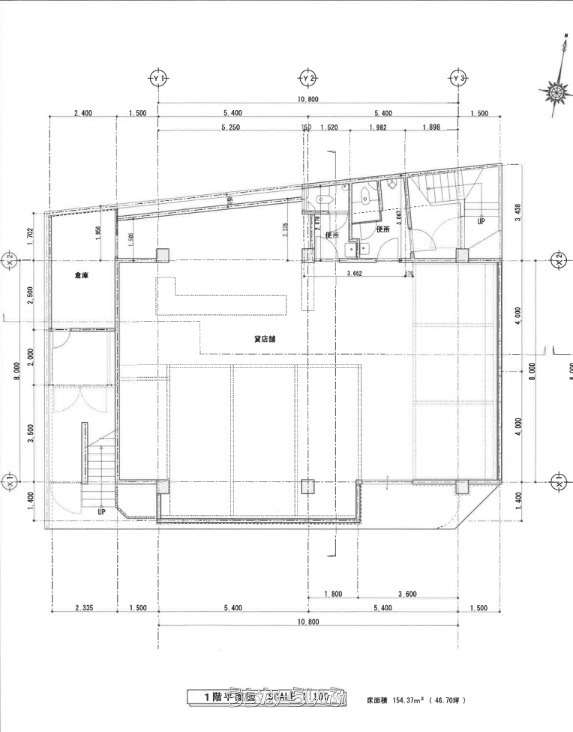
| 床面積 | 154.34m² / 46.69坪 | ||
| 敷金/礼金 | 1ヶ月/1ヶ月 | 保証金 | - |
| 仲介手数料 | 1.1ヶ月 | ||
| 料金備考 | ※ 家賃は消費税10%かかります。 | ||
| 部屋番号 | 1階号 | 所在階/階数 | 1階 (3階建) |
| 物件種目 | 賃貸店舗・その他 | 取引態様 | 仲介 |
| 契約期間 | 定期借家契約 (2年) | 更新料 | 2.2万円 |
| 保証会社 | 加入要 ◎フェアー信用保証◎火災保険 | ||
| 入居 | 即日 | ||
| 駐車場 | ナシ ※近隣にいとま~る有料駐車場あります。 | 所在地 | 糸満市糸満 地図 |
| 交通 | - | 築年月 | 1980年04月(築45年) |
| 間取り備考 | ※ 居酒屋跡地の為備品等あり。 店舗内一部増築部分もあり原状貸しとなります。 ※ 用途変更等要ご相談!! | ||
| 更新日 | 2026/02/04 | 公開期限 | 2026/02/17 |
この物件の設備・条件
| 状態 | 居抜き |
|---|---|
| 内装・設備 | トイレ 、 男女別トイレ |
| 特徴・その他 | 飲食店可 、 深夜営業可 |
| 立地 | 海が近い(500m以内) |
物件備考
| 備考 | - |
|---|
【うちなーらいふ】は、より正確な情報の提供を心がけておりますが、物件情報に誤りがある場合は、ご連絡をお願い致します。
ご報告いただいた内容につきましては、掲載提供元である不動産会社に直接送信させていただきます。情報が不足している場合や、事実確認ができない場合などは対応できない場合がございます。
間違いを報告する






































