糸満市字糸満で46.69坪の大きい店舗が内見可能です。以前は選挙事務所、居酒屋としても使っておりました。
物件情報
| 家賃 | 11万円 | 共益費 | ナシ |
|---|---|---|---|
| 床面積 | 154.36m² / 46.69坪 | ||
| 敷金/礼金 | 1ヶ月/1ヶ月 | 保証金 | ナシ |
| 仲介手数料 | 1ヶ月 | ||
| 料金備考 | ◆火災保険:要加入 ※更新料あり | ||
| 部屋番号 | 1F号 | 所在階/階数 | 1階 (3階建) |
| 物件種目 | 賃貸店舗・事務所・居酒屋 | 取引態様 | 仲介 |
| 契約期間 | 定期借家契約 | 更新料 | 2.2万円 |
| 保証会社 | 加入要 | ||
| 入居 | 相談 | ||
| 駐車場 | ナシ ※※徒歩1分いとまーる有料駐車場あり(57台収容。 ) | 所在地 | 糸満市糸満 地図 |
| 交通 | 【バス停】糸満市場入口: 徒歩約2分 | 築年月 | 1980年04月(築45年) |
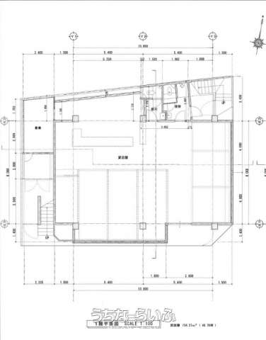
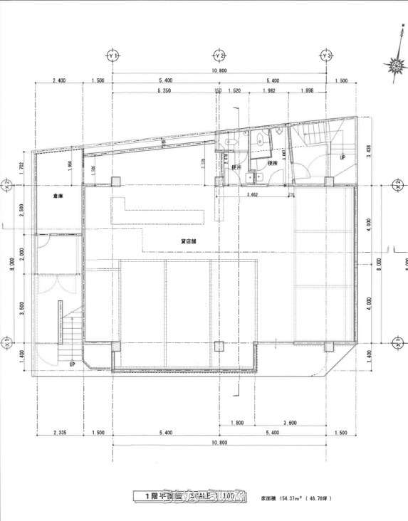
| 間取り備考 | 2024年7月まで居酒屋として営業。本物件の間取り図は参考図となります。 実際の間取りや仕様は現状を優先とさせていただきますので、 詳細については現地でご確認いただけますようお願い申し上げます。 ご不明点がございましたらお気軽にお問い合わせください。 | ||
| 更新日 | 2026/02/01 | 公開期限 | 2026/02/14 |
この物件の設備・条件
| 状態 | 居抜き |
|---|---|
| 内装・設備 | トイレ 、 男女別トイレ 、 インターネット対応 |
| 特徴・その他 | 飲食店可 、 深夜営業可 |
| 立地 | 海が近い(500m以内) 、 商店街 、 繁華街 、 路面店 |
物件備考
| 備考 | 糸満市字糸満で46.69坪の大きい店舗が内見可能です。以前は選挙事務所、居酒屋としても使っておりました。 |
|---|
【うちなーらいふ】は、より正確な情報の提供を心がけておりますが、物件情報に誤りがある場合は、ご連絡をお願い致します。
ご報告いただいた内容につきましては、掲載提供元である不動産会社に直接送信させていただきます。情報が不足している場合や、事実確認ができない場合などは対応できない場合がございます。
間違いを報告する








































