内見可能です!広めの46.69坪の店舗になります♪
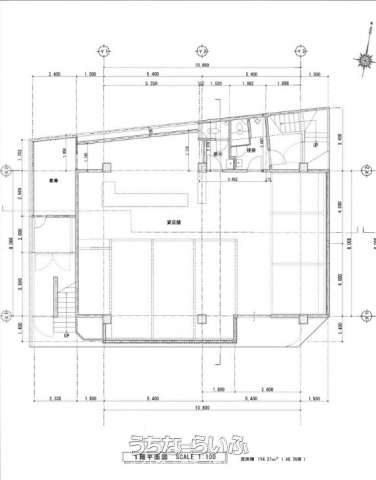
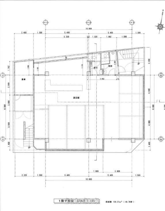
内部は居酒屋跡地となっております。座敷、カウンター、エアコンなどがございますが、全て残置物となります。一部増築部分を含んでおります。
駐車場はございません。(※徒歩2分いとまーる有料駐車場57台収容)
用途などお気軽にお問い合わせください。
物件情報
| 家賃 | 12.1万円 | 共益費 | ナシ |
|---|---|---|---|
| 床面積 | 154.36m² / 46.69坪 | ||
| 敷金/礼金 | 11万円/11万円 | 保証金 | ナシ |
| 仲介手数料 | 1ヶ月 | ||
| 料金備考 | ※家賃110,000円+11,000円(消費税)=121,000円 ◆火災保険:要加入 | ||
| 部屋番号 | 1F号 | 所在階/階数 | 1階 (3階建) |
| 物件種目 | 賃貸店舗・事務所・居酒屋 | 取引態様 | 専任媒介 |
| 契約期間 | 定期借家契約 (2年) | 更新料 | - |
| 保証会社 | 加入要 ◆保証委託料121,000円 | ||
| 入居 | 相談 | ||
| 駐車場 | ナシ | 所在地 | 糸満市糸満 地図 |
| 交通 | 【バス停】糸満市場入口: 徒歩約2分 | 築年月 | 1980年04月(築45年) |
| 間取り備考 | - | ||
| 更新日 | 2026/02/03 | 公開期限 | 2026/02/16 |
物件備考
| 備考 | ※定期借家契約2年:再契約事務手数料22,000円(10%税込み) ※間取り図と現状が異なる場合は現状優先になります。 【初期費用概算:583,000円】 家 賃:110,000円 消費税:11,000円 敷 金:110,000円 礼 金:110,000円 仲介手数料:121,000円 保証委託料:121,000円 火災保険料:別途加入 周辺環境 ・いとま~るまで180m徒歩3分 ・糸満漁港まで280m徒歩4分 ・ファミリーマート 糸満ロータリー店400m徒歩6分 ・サンエーしおざきシティ店まで750m |
|---|
【うちなーらいふ】は、より正確な情報の提供を心がけておりますが、物件情報に誤りがある場合は、ご連絡をお願い致します。
ご報告いただいた内容につきましては、掲載提供元である不動産会社に直接送信させていただきます。情報が不足している場合や、事実確認ができない場合などは対応できない場合がございます。
間違いを報告する









