モノレール「石嶺駅」「儀保駅」の2駅が徒歩圏内の便利な立地です!
城北小学校まで徒歩2分、城北中学校まで徒歩6分★
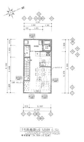
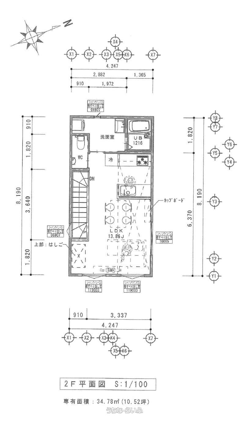
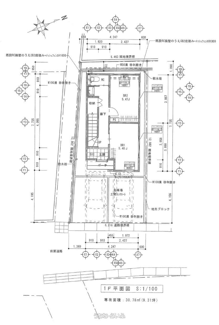
首里石嶺町3丁目一戸建てB棟 2LDKロフト、バルコニー付!
お気軽にお問い合わせください。
売買一戸建て那覇市首里石嶺町3丁目 2LDK
価格 4,780万円
物件情報
| 価格 | 4,780万円 | 階数 | 2階建て |
|---|---|---|---|
| 間取り | 2LDK ( ※ロフト、バルコニー付き) | ||
| 建物面積 | 65.6m² / 19.84坪 | 土地面積 | 75.44m² / 22.82坪 |
| 私道負担 | 無し | 築年月 | |
| 駐車場 | 2台 並列 | 地目 | 宅地 |
| 引き渡し | 相談 | 接道方向 / 道路幅員 | 東 |
| 土地権利 | 所有 | 都市計画 | 市街化区域 |
| 用途地域 | 第一種低層 | 建物構造 | RC(鉄筋コンクリート造) |
| 取引態様 | 専属専任媒介 | 所在地 | 那覇市首里石嶺町3丁目 地図 |
| 建ぺい率 / 容積率 | 46% / 86% | 交通 | 【モノレール】石嶺駅: 徒歩約7分 【バス停】若夏学園前: 徒歩約2分 |
| 価格備考 | - | ||
| 更新日 | 2026/04/27 | 公開期限 | 2026/05/10 |
この物件の設備・条件
| バス・トイレ | トイレ2ヶ所 |
|---|---|
| 立地・土地特徴 | 駅近く |
| 建物設備 | ロフト |
物件備考
| 備考 | ■現況: 建築中 ■建築確認番号: - |
|---|
【掲載物件について】
・「うちなーらいふ」は、より正確な情報の提供を心がけておりますが、物件情報に誤りがある場合は、ご連絡をお願い致します。
・ご報告いただいた内容につきましては、掲載提供元である不動産会社に直接送信させていただきます。情報が不足している場合や、事実確認ができない場合などは対応できない場合がございます。
・本フォームは物件情報の誤りに関する報告専用です。賃貸・売買に関するお問い合わせには対応しておりませんので、あらかじめご了承ください。
こちらをクリックして物件の間違いを報告する。













