★眺めの良い高台に建つ築9年1Kタイプ全11室★現在満室! 年収入7,500,000円
物件情報
| 価格 | 1億3,500万円 | 所在階/階数 | - |
|---|---|---|---|
| 建物面積 | 386.9m² / 117.04坪 | 土地面積 | 450.98m² / 136.42坪 |
| 私道負担 | - | 土地権利 | 所有 |
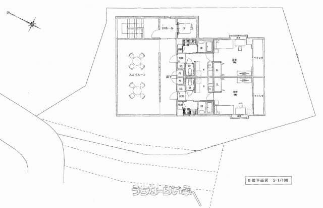
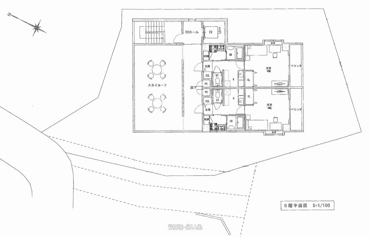
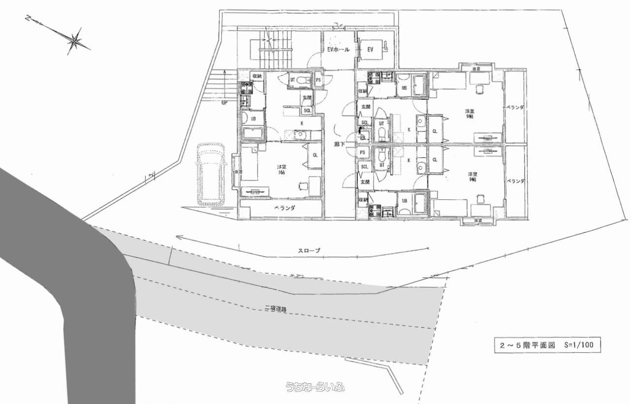
| 間取り | 1K | ペット | 相談 |
| 築年月 | 2016年09月(築9年) | 地目 | 宅地 |
| 引渡し | 相談 | 都市計画 | 市街化区域 |
| 用途地域 | 第一種住居 | 取引態様 | 専任媒介 |
| 建ぺい率 / 容積率 | 60% / 200% | 所在地 | 那覇市楚辺2丁目 地図 |
| 接道方向 / 道路幅員 | 西、 北西 | 構造 | RC(鉄筋コンクリート造) |
| 交通 | 【モノレール】壺川駅: 徒歩約20分 | 価格備考 | - |
| 更新日 | 2026/04/20 | 公開期限 | 2026/05/03 |
この物件の設備・条件
| その他条件 | バス/トイレ別 、 エアコン付 、 オートロック 、 エレベーター 、 一人暮らし向き |
|---|
物件備考
| 備考 | ※所有権移転費用は買手負担となります。【令和7年度固定資産税:土地建物合計 703,692円】 |
|---|
【掲載物件について】
・「うちなーらいふ」は、より正確な情報の提供を心がけておりますが、物件情報に誤りがある場合は、ご連絡をお願い致します。
・ご報告いただいた内容につきましては、掲載提供元である不動産会社に直接送信させていただきます。情報が不足している場合や、事実確認ができない場合などは対応できない場合がございます。
・本フォームは物件情報の誤りに関する報告専用です。賃貸・売買に関するお問い合わせには対応しておりませんので、あらかじめご了承ください。
こちらをクリックして物件の間違いを報告する。タフホーム株式会社
| 住所 | 沖縄県那覇市寄宮 148-6 102 地図 |
|---|---|
| 営業時間 | 月-金 09:00〜18:00 第1、3土曜日 10:00〜16:00 |
| 定休日 | 日曜・祝日・第2、第4、第5土曜日 |
| 免許 | 沖縄県知事免許番号(2)第5160号 |










