【動画有り】ジャングリアまで車で15分の立地に店舗付き戸建て住宅が出ました♪国道までのアクセスも良し、店舗は最近まで飲食店(カフェレストラン)をされてたのですぐに事業を始めたい方にもピッタリです!
その他名護市宮里 706.79㎡
価格 7,800万円
物件情報
| 価格 | 7,800万円 | 所在階/階数 | 1階 (1階建) |
|---|---|---|---|
| 建物面積 | 222.05m² / 67.17坪 | 土地面積 | 706.79m² / 213.8坪 |
| 私道負担 | - | 土地権利 | 所有 |
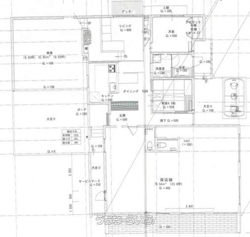
| 間取り | 5LDK | ペット | - |
| 築年月 | 2013年11月(築12年) | 地目 | 宅地 |
| 引渡し | - | 都市計画 | 非線引 |
| 用途地域 | 無指定 | 取引態様 | 仲介 |
| 建ぺい率 / 容積率 | 60% / 200% | 所在地 | 名護市宮里 |
| 接道方向 / 道路幅員 | 南 | 構造 | RC(鉄筋コンクリート造) |
| 交通 | - | 価格備考 | - |
| 更新日 | 2026/03/13 | 公開期限 | 2026/03/26 |
この物件の設備・条件
| その他条件 | バス/トイレ別 、 角地 、 角部屋 |
|---|
物件備考
| 備考 | ※※現在居住中の為、内見の際は事前のご予約が必須です※※ 土地201.39坪×25万/坪=50,373,671円 建物67.17坪×100万/坪=67,170,000円×現価率78.93%=53,000,000円 再調達価格=土地5000万+5300万=1億300万円 ※原価率はRC造の対応年数47年と本物件の築年数11年を計算したパーセンテージです。 ※原価率計算式=1-0.9×(11÷47)=78.93% 土地を20万/坪で計算しても9300万円。 |
|---|
【掲載物件について】
・「うちなーらいふ」は、より正確な情報の提供を心がけておりますが、物件情報に誤りがある場合は、ご連絡をお願い致します。
・ご報告いただいた内容につきましては、掲載提供元である不動産会社に直接送信させていただきます。情報が不足している場合や、事実確認ができない場合などは対応できない場合がございます。
・本フォームは物件情報の誤りに関する報告専用です。賃貸・売買に関するお問い合わせには対応しておりませんので、あらかじめご了承ください。
こちらをクリックして物件の間違いを報告する。有限会社マルトモ不動産
| 住所 | 沖縄県名護市宮里 1-5-30 松田アパート 101 地図 |
|---|---|
| 営業時間 | 月-金 09:00〜17:00 |
| 定休日 | 土曜日・日曜日・祝祭日 ・慰霊の日・旧盆・年末年始 |
| 免許 | 沖縄県知事(2)第5220号 |

































