☆サンエー西原シティ近くに売アパートが出ました!ワンフロアー1世帯ずつの全部で3世帯!
☆駐車場各部屋2台可能!只今1室空きが出たので内覧可能です!
☆今なら住宅兼収益物件としても可能!お気軽にお問い合わせください。
売アパート西原町小那覇 161.15㎡
価格 6,500万円
物件情報
| 価格 | 6,500万円 | 所在階/階数 | - |
|---|---|---|---|
| 建物面積 | 148.8m² / 45.01坪 | 土地面積 | 161.15m² / 48.74坪 |
| 私道負担 | - | 土地権利 | 所有 |
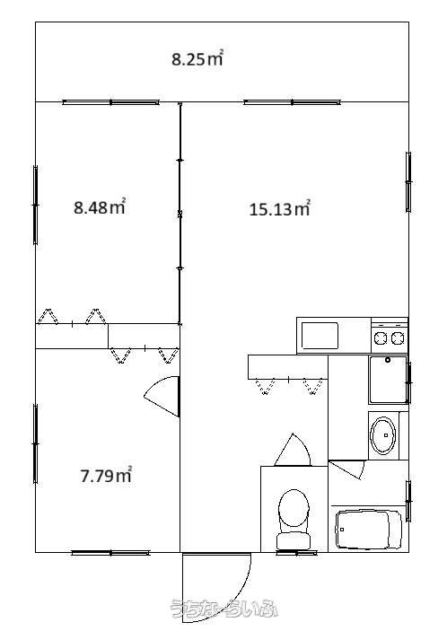
| 間取り | 2DK ( 洋5.1 洋4.7 DK9.1 ※☆各階、ワンフロアー1世帯ずつ(2DK×3部屋)) | ペット | - |
| 築年月 | 2012年03月(築13年) | 地目 | 宅地 |
| 引渡し | 相談 | 都市計画 | 市街化区域 |
| 用途地域 | 第一種低層 | 取引態様 | 仲介 |
| 建ぺい率 / 容積率 | 50% / 100% | 所在地 | 西原町小那覇 |
| 接道方向 / 道路幅員 | 北東16m | 構造 | RC(鉄筋コンクリート造) |
| 交通 | 【バス停】小那覇バス亭: 徒歩約4分 | 価格備考 | - |
| 更新日 | 2026/02/07 | 公開期限 | 2026/02/20 |
この物件の設備・条件
| その他条件 | バス/トイレ別 、 角地 、 角部屋 、 ファミリー向き |
|---|
物件備考
| 備考 | ☆只今、1部屋空きが出ましたので、内見可能です!今なら住宅兼収益物件としてお家賃でローン返済もらくらくできます! ☆詳細は担当(長濱:090-6638-4319)までお問い合わせください。 |
|---|
【うちなーらいふ】は、より正確な情報の提供を心がけておりますが、物件情報に誤りがある場合は、ご連絡をお願い致します。
ご報告いただいた内容につきましては、掲載提供元である不動産会社に直接送信させていただきます。情報が不足している場合や、事実確認ができない場合などは対応できない場合がございます。
間違いを報告する



