住居兼収益物件をお探しの方へ。 ワンフロアー1世帯 全3世帯 年間収益(住居兼の場合156万)
物件情報
| 価格 | 6,500万円 | 所在階/階数 | - |
|---|---|---|---|
| 建物面積 | 148.8m² / 45.01坪 | 土地面積 | 161.15m² / 48.74坪 |
| 私道負担 | - | 土地権利 | 所有 |
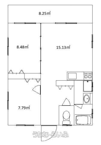
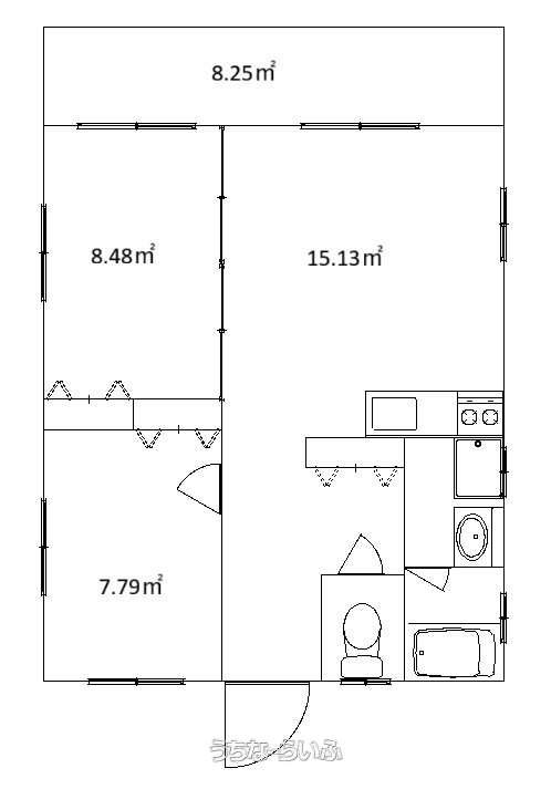
| 間取り | 2DK ( 洋5.1 洋4.7 DK9.1) | ペット | - |
| 築年月 | 2012年03月(築13年) | 地目 | 宅地 |
| 引渡し | 即日 | 都市計画 | 市街化区域 |
| 用途地域 | 第一種低層 | 取引態様 | 専属専任媒介 |
| 建ぺい率 / 容積率 | 50% / 100% | 所在地 | 西原町小那覇 |
| 接道方向 / 道路幅員 | 北東16m | 構造 | CB(コンクリート・ブロック造) |
| 交通 | 【バス停】小那覇: 徒歩約4分 | 価格備考 | - |
| 更新日 | 2026/01/29 | 公開期限 | 2026/02/11 |
この物件の設備・条件
| 投資収益 | 収益物件 |
|---|---|
| その他条件 | バス/トイレ別 、 角地 、 角部屋 |
物件備考
| 備考 | - |
|---|
【うちなーらいふ】は、より正確な情報の提供を心がけておりますが、物件情報に誤りがある場合は、ご連絡をお願い致します。
ご報告いただいた内容につきましては、掲載提供元である不動産会社に直接送信させていただきます。情報が不足している場合や、事実確認ができない場合などは対応できない場合がございます。
間違いを報告する(株)シンプル
| 住所 | 沖縄県那覇市長田 1-22-22 107 地図 |
|---|---|
| 営業時間 | 月 火 木 金 09:30〜17:30 土 09:30〜13:00 |
| 定休日 | 水曜日・日曜日・祝祭日 |
| 免許 | 沖縄県知事免許(3)第4191号 |






