恩納村名嘉真は、沖縄本島屈指の自然美と静けさが調和した場所です。目の前に広がる名嘉真ブルーの海は、時間帯によって表情を変え、朝はやさしく、夕方にはドラマチックに輝きます✨白砂のビーチと透明度の高い海は、
ただ眺めているだけでも心をほどき、日常の喧騒を忘れさせてくれます🍀セカンドハウスや民泊運営にいかがでしょうか🌟ぜひお気軽にお問い合わせください🌈
パノラマ画像
物件情報
| 価格 | 6,980万円 | 所在階/階数 | - |
|---|---|---|---|
| 建物面積 | 75.56m² / 22.85坪 | 土地面積 | 282m² / 85.3坪 |
| 私道負担 | - | 土地権利 | 所有 |
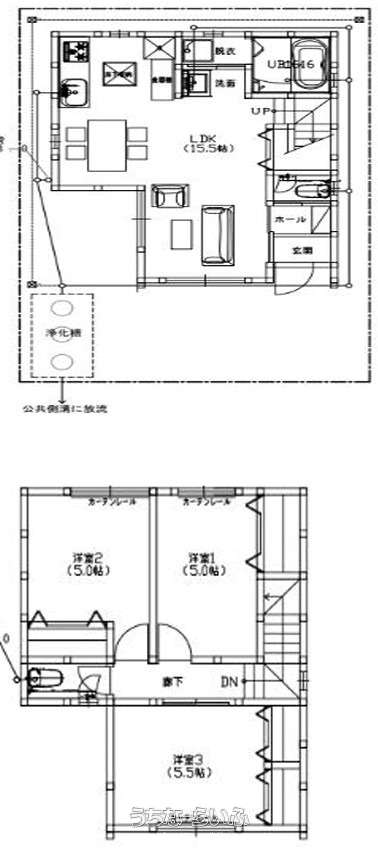
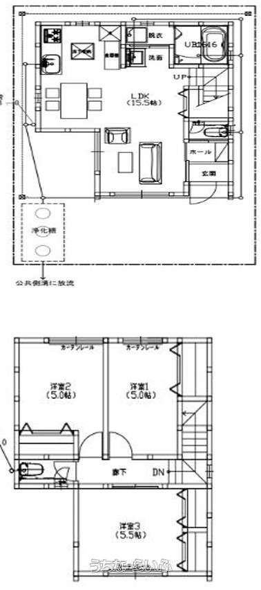
| 間取り | 3LDK | ペット | 不可 |
| 築年月 | 2018年06月(築7年) | 地目 | 宅地 |
| 引渡し | 相談 (※担当者にお尋ねください) | 都市計画 | - |
| 用途地域 | 無指定 | 取引態様 | 仲介 |
| 建ぺい率 / 容積率 | 60% / 200% | 所在地 | 恩納村名嘉真 地図 |
| 接道方向 / 道路幅員 | 北、 北東4m、 東、 南東、 南、 南西、 西、 北西 | 構造 | 木造 |
| 交通 | 【モノレール】てだこ浦西駅: バス乗車187分/徒歩約612分 【バス停】伊武部希望ヶ丘入口: 徒歩約5分 | 価格備考 | ご契約時に、お手付金と印紙が必要となります。 お客様に合わせた資金計画もご相談可能です!お気軽にお問い合わせ下さい! |
| 更新日 | 2026/03/18 | 公開期限 | 2026/03/31 |
この物件の設備・条件
| 投資収益 | 収益物件 |
|---|---|
| その他条件 | バス/トイレ別 |
物件備考
| 備考 | ■民泊運営中 ■掲載内容と現況が異なる場合がございます。あらかじめご了承ください。気になる点はお気軽にスタッフまでお尋ねください。 ■ご来店はもちろん、お電話・メール・オンライン相談やオンライン内覧にも対応。遠方やお忙しい方もご自宅からスムーズにご相談・ご見学いただけます。 ■ハウスドゥ北谷店・恩納読谷店・宜野湾店は、“地域に一番近い不動産パートナー”として、お客様一人ひとりに寄り添ったご提案を心掛けています。初めてのご購入・ご売却も安心。経験豊富なスタッフが不動産の不安や疑問を「納得」に変えるお手伝いをいたします。 ■店舗前に駐車場完備🚗 キッズスペースやドリンク・お菓子のサービスもあり、ご家族でゆっくりご相談いただけます。 ■土地・建物・事業用・収益物件など売却物件も大募集中!無料査定実施中。女性スタッフも在籍し、初めての方も安心です😊 ――あなたの大切な不動産、私たちが心を込めてお手伝いいたします。 |
|---|
【掲載物件について】
・「うちなーらいふ」は、より正確な情報の提供を心がけておりますが、物件情報に誤りがある場合は、ご連絡をお願い致します。
・ご報告いただいた内容につきましては、掲載提供元である不動産会社に直接送信させていただきます。情報が不足している場合や、事実確認ができない場合などは対応できない場合がございます。
・本フォームは物件情報の誤りに関する報告専用です。賃貸・売買に関するお問い合わせには対応しておりませんので、あらかじめご了承ください。
こちらをクリックして物件の間違いを報告する。



























