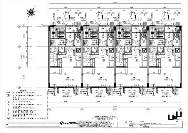
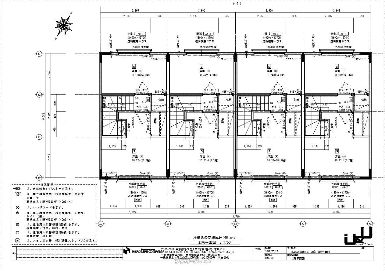
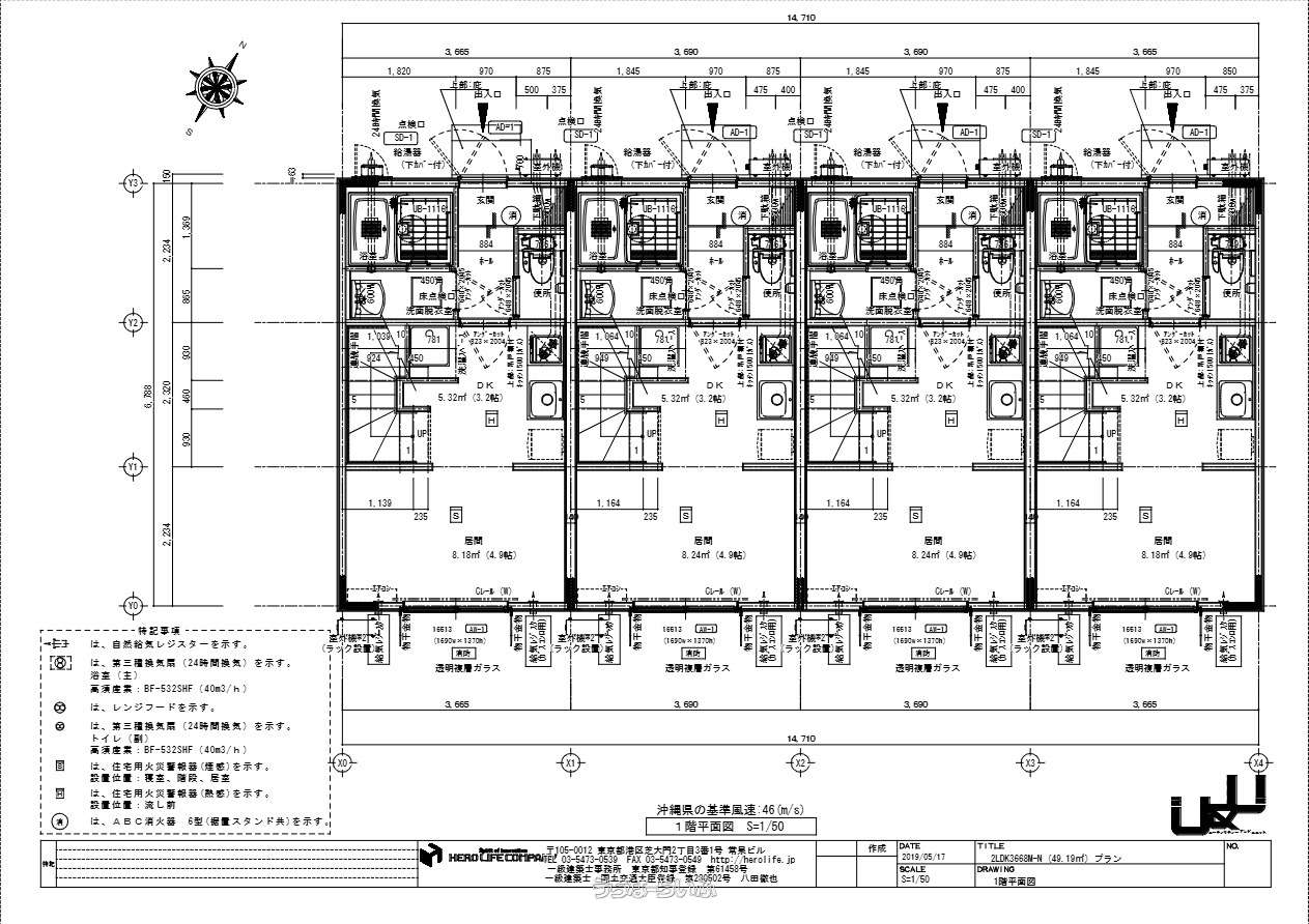
南国・宮古島に位置するメゾネットタイプ全4室2階建て♪
満室時表面利回り7%
売アパート宮古島市平良字東仲宗根 355.47㎡
価格 1億500万円
物件情報
| 価格 | 1億500万円 | 所在階/階数 | - |
|---|---|---|---|
| 建物面積 | 199.47m² / 60.34坪 | 土地面積 | 355.47m² / 107.53坪 |
| 私道負担 | - | 土地権利 | 所有 |
| 間取り | 2LDK ( 洋6.2 洋4.9 LDK9.4) | ペット | - |
| 築年月 | 2019年11月(築6年) | 地目 | 宅地 |
| 引渡し | 即日 (相談) | 都市計画 | 非線引 |
| 用途地域 | - | 取引態様 | 一般媒介 |
| 建ぺい率 / 容積率 | 50% / 100% | 所在地 | 宮古島市平良字東仲宗根 地図 |
| 接道方向 / 道路幅員 | 北西 | 構造 | 木造 |
| 交通 | - | 価格備考 | - |
| 更新日 | 2026/02/17 | 公開期限 | 2026/03/02 |
この物件の設備・条件
| 投資収益 | 収益物件 |
|---|---|
| その他条件 | バス/トイレ別 、 エアコン付 |
物件備考
| 備考 | A号室・200,000円 B・C号室・150,000円 D号室・120,000円(空室) |
|---|
【うちなーらいふ】は、より正確な情報の提供を心がけておりますが、物件情報に誤りがある場合は、ご連絡をお願い致します。
ご報告いただいた内容につきましては、掲載提供元である不動産会社に直接送信させていただきます。情報が不足している場合や、事実確認ができない場合などは対応できない場合がございます。
間違いを報告する










