伊良部大橋へも車で5分圏内!
人気エリア久貝に位置する収益物件です。
売店舗兼アパート宮古島市平良字久貝 409.59㎡
価格 1億5,000万円
物件情報
| 価格 | 1億5,000万円 | 所在階/階数 | - |
|---|---|---|---|
| 建物面積 | 340.73m² / 103.07坪 | 土地面積 | 409.59m² / 123.9坪 |
| 私道負担 | 無し | 土地権利 | 所有 |
| 間取り | - | ペット | - |
| 築年月 | 2014年02月(築11年) | 地目 | 宅地 |
| 引渡し | 即日 (相談) | 都市計画 | 非線引 |
| 用途地域 | 無指定 | 取引態様 | 一般媒介 |
| 建ぺい率 / 容積率 | 60% / 200% | 所在地 | 宮古島市平良字久貝 地図 |
| 接道方向 / 道路幅員 | 南東16m | 構造 | RC(鉄筋コンクリート造) |
| 交通 | - | 価格備考 | - |
| 更新日 | 2026/01/31 | 公開期限 | 2026/02/13 |
この物件の設備・条件
| その他条件 | バス/トイレ別 、 エアコン付 |
|---|
物件備考
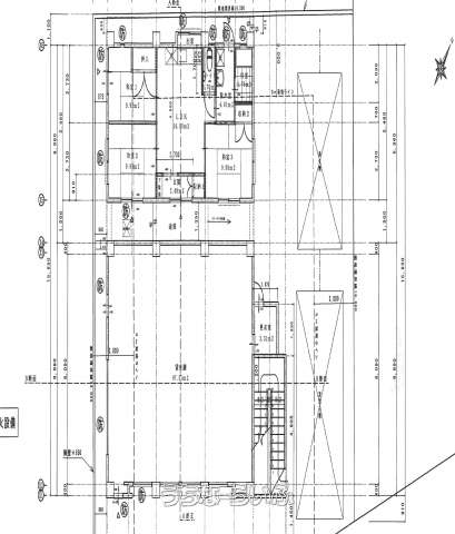
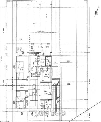
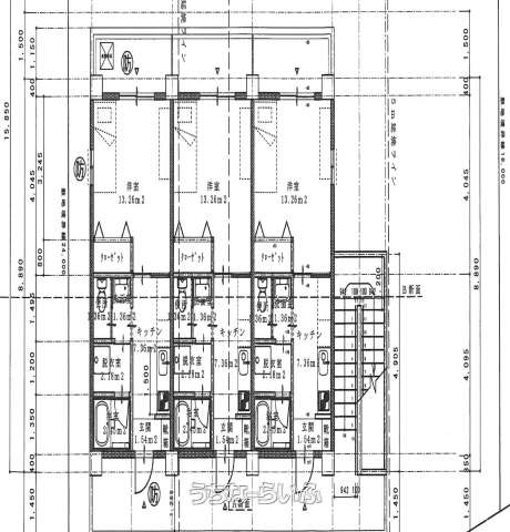
| 備考 | 1階・店舗(29.36坪)・貸室(18.04坪)3LDK 2階・貸室(27.68坪)3SLDK 3階・貸室×3部屋(1部屋8.91坪) |
|---|
【うちなーらいふ】は、より正確な情報の提供を心がけておりますが、物件情報に誤りがある場合は、ご連絡をお願い致します。
ご報告いただいた内容につきましては、掲載提供元である不動産会社に直接送信させていただきます。情報が不足している場合や、事実確認ができない場合などは対応できない場合がございます。
間違いを報告する















