✨環状線道路近くの交通便利な角地にて1フロア1世帯(全3世帯)の贅沢な賃貸物件が出ました!('◇')ゞ✨高速IC・スーパー近くで生活便利な環境、少年院跡地にも近いため更なる発展が楽しみな地域です(^^♪✨1Fの退去予定もございますので住宅兼店舗の使用も可能です♪過去に軍実績の部屋有、太陽光売電収入有り【年間約550,000円売電実績有/売電契約期間:~2034年9月まで】各階駐車2台可能♪(車種によって異なります)✨お問い合わせお待ちしております✨※詳細は備考欄にてございます。※動画記載の家賃年間収入は1Fを月15万で賃貸+売電収入を55万とした場合の想定収入としております。
物件情報
| 価格 | 1億2,380万円 | 所在階/階数 | - |
|---|---|---|---|
| 建物面積 | 346.5m² / 104.81坪 | 土地面積 | 308.61m² / 93.35坪 |
| 私道負担 | 有り | 土地権利 | 所有 |
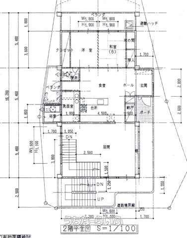
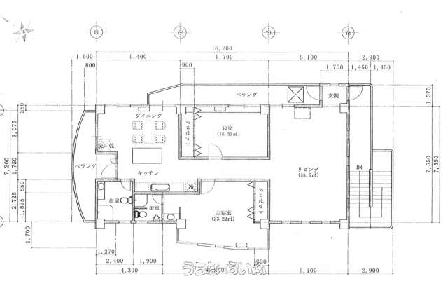
| 間取り | 2LDK ( ※【物件備考欄を参照ください】※掲載された間取り図は建築当時の図面であり、現在、増築・改修工事等により間取りが異なりますので予めご了承ください。尚、現況の間取りでのお引渡しとなります。) | ペット | - |
| 築年月 | 1998年04月(築27年) | 地目 | 宅地 |
| 引渡し | 相談 | 都市計画 | 非線引 |
| 用途地域 | 準住居・第一種中高層 | 取引態様 | 仲介 |
| 建ぺい率 / 容積率 | 60% / 200% | 所在地 | 沖縄市山内1丁目 地図 |
| 接道方向 / 道路幅員 | 北東4.2m、 南東6m | 構造 | RCB(鉄筋コンクリートブロック造) |
| 交通 | 【バス停】足立医院前(沖縄市循環バス): 徒歩約4分 | 価格備考 | 【土地+建物+太陽光発電設備】 |
| 更新日 | 2026/03/14 | 公開期限 | 2026/03/27 |
この物件の設備・条件
| その他条件 | バス/トイレ別 、 エアコン付 、 角地 、 角部屋 、 二世帯住宅 |
|---|---|
| 設備備考 | 【太陽光発電設備:年間約550,000円売電実績有/売電契約期間:~2034年9月まで】 |
物件備考
| 備考 | ♦土地は計3筆となります。 ♦一部地目:山林(14㎡) ♦各階詳細 【1 F】2LDK(約95.76㎡/28.96坪(内約30.96㎡/9.36坪増築))+店舗(約38.88㎡/11.76坪)※各居室平米数不明 【2 F】《現在賃貸中:9.2万》3LDK(108.87㎡/32.9坪)※LDK約16.2帖/➀洋室約23.5帖、②洋室約6帖、③和室約6帖 【3 F】《現在賃貸中:10万》2LDK(123.31㎡/37.3坪)※L約23.3坪+DK約14.4帖/➀洋室約14帖、②洋室約9.8帖 ♦角地適応で容積率10%緩和 ♦一部里道(管理者:沖縄市)の借地部分(1年更新借地契約)あり※46㎡程度(年間借地料 21,000円) |
|---|
【掲載物件について】
・「うちなーらいふ」は、より正確な情報の提供を心がけておりますが、物件情報に誤りがある場合は、ご連絡をお願い致します。
・ご報告いただいた内容につきましては、掲載提供元である不動産会社に直接送信させていただきます。情報が不足している場合や、事実確認ができない場合などは対応できない場合がございます。
・本フォームは物件情報の誤りに関する報告専用です。賃貸・売買に関するお問い合わせには対応しておりませんので、あらかじめご了承ください。
こちらをクリックして物件の間違いを報告する。株式会社 新和
| 住所 | 沖縄県沖縄市比屋根 7-21-14 アクアポイント2 301 地図 |
|---|---|
| 営業時間 | 平日 10:00〜17:00 ※営業時間外のご案内等相談可能でございます。営業時間内の前日15時までにご連絡ください。 |
| 定休日 | 土曜・日曜・祝日 |
| 免許 | 沖縄県知事免許(1)第5669号 |





































