【多用途利用可能/石川ICまで車で約8分】店舗・事務所・住居さまざまな用途で利用可能◎
石川ICまで車で約8分と交通アクセスも良好!
写真では伝わらない良さがあります。まずはお気軽に内覧予約を♪
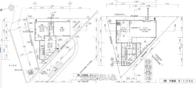
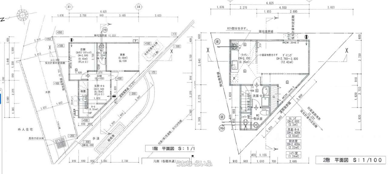
売店舗うるま市石川東恩納 60.92㎡
価格 2,680万円
物件情報
| 価格 | 2,680万円 | 所在階/階数 | - |
|---|---|---|---|
| 建物面積 | 68.31m² / 20.66坪 | 土地面積 | 60.92m² / 18.42坪 |
| 私道負担 | 無し | 土地権利 | 所有 |
| 間取り | 1LDK ( 洋6 LDK12 ※ロフト付き♪) | ペット | 可 |
| 築年月 | 2020年10月(築5年) | 地目 | 宅地 |
| 引渡し | 相談 | 都市計画 | 非線引 |
| 用途地域 | 無指定 | 取引態様 | 専任媒介 |
| 建ぺい率 / 容積率 | 60% / 200% | 所在地 | うるま市石川東恩納 |
| 接道方向 / 道路幅員 | - | 構造 | 木造 |
| 交通 | 【バス停】東恩納: 徒歩約11分 | 価格備考 | ①契約書へ貼付する収入印紙 ②手付金(契約申込金) ※資金計画作成・事前審査のご相談はお気軽にお問い合わせください♪ |
| 更新日 | 2026/01/27 | 公開期限 | 2026/02/09 |
この物件の設備・条件
| その他条件 | バス/トイレ別 、 角地 、 角部屋 |
|---|
物件備考
| 備考 | ※現在居住中の為、内見の際は事前のご予約が必須です※ ◆現況有姿での売買となります。 ◆売主様の契約不適合責任は免責とさせていただきます。 ◆掲載写真の家具・家電は付属しません。 |
|---|
【うちなーらいふ】は、より正確な情報の提供を心がけておりますが、物件情報に誤りがある場合は、ご連絡をお願い致します。
ご報告いただいた内容につきましては、掲載提供元である不動産会社に直接送信させていただきます。情報が不足している場合や、事実確認ができない場合などは対応できない場合がございます。
間違いを報告する株式会社タニモト 沖縄支店
| 住所 | 沖縄県浦添市仲西 3-5-10 1階 地図 |
|---|---|
| 営業時間 | 月〜土 09:00〜18:00 ※第2.第4土曜日定休日 09:00〜18:00 |
| 定休日 | 日曜日 |
| 免許 | 国土交通大臣免許(1)第10234号 |




































