飲食店店舗をお探しの方必見!駐車場広々の独立店舗です!
売店舗宮古島市平良字東仲宗根 610.53㎡
価格 4,980万円
物件情報
| 価格 | 4,980万円 | 所在階/階数 | 1階 (1階建) |
|---|---|---|---|
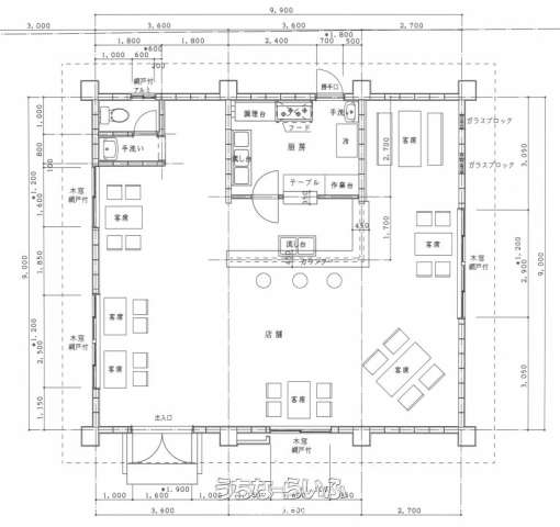
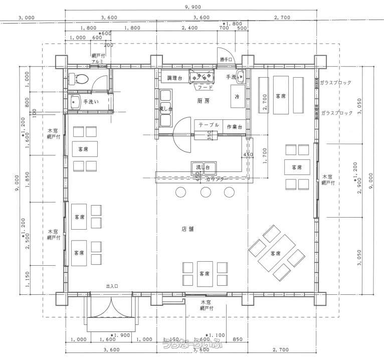
| 建物面積 | 89.1m² / 26.95坪 | 土地面積 | 610.53m² / 184.68坪 |
| 私道負担 | 無し | 土地権利 | 所有 |
| 間取り | - | ペット | - |
| 築年月 | 1970年10月(築55年) | 地目 | 宅地 |
| 引渡し | 即日 | 都市計画 | 市街化区域 |
| 用途地域 | 第一種中高層 | 取引態様 | 仲介 |
| 建ぺい率 / 容積率 | 60% / 200% | 所在地 | 宮古島市平良字東仲宗根 地図 |
| 接道方向 / 道路幅員 | 北、 北東、 東、 南東、 南、 南西25m、 西、 北西31m | 構造 | RC(鉄筋コンクリート造) |
| 交通 | 【バス停】北小前: 徒歩約6分 | 価格備考 | - |
| 更新日 | 2026/03/19 | 公開期限 | 2026/04/01 |
この物件の設備・条件
| 設備備考 | 敷地内にコンテナが2個あります |
|---|
物件備考
| 備考 | - |
|---|
【掲載物件について】
・「うちなーらいふ」は、より正確な情報の提供を心がけておりますが、物件情報に誤りがある場合は、ご連絡をお願い致します。
・ご報告いただいた内容につきましては、掲載提供元である不動産会社に直接送信させていただきます。情報が不足している場合や、事実確認ができない場合などは対応できない場合がございます。
・本フォームは物件情報の誤りに関する報告専用です。賃貸・売買に関するお問い合わせには対応しておりませんので、あらかじめご了承ください。
こちらをクリックして物件の間違いを報告する。

















