西原町翁長収益物件!現在、全4室満室稼働中です。
年間収益1,226万円、表面利回り6.45%
全室定期借家契約にて、店舗・施設・事務所利用です。
駐車場全28台完備しております。
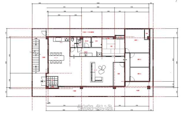
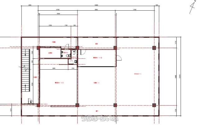
物件情報
| 価格 | 1億9,000万円 | 所在階/階数 | - |
|---|---|---|---|
| 建物面積 | 468.93m² / 141.85坪 | 土地面積 | 1743.71m² / 527.47坪 |
| 私道負担 | 無し | 土地権利 | 所有 |
| 間取り | - | ペット | - |
| 築年月 | 1996年08月(築29年) | 地目 | 宅地 |
| 引渡し | 相談 | 都市計画 | 市街化区域 |
| 用途地域 | 準住居 | 取引態様 | 専任媒介 |
| 建ぺい率 / 容積率 | 60% / 200% | 所在地 | 西原町翁長 |
| 接道方向 / 道路幅員 | 南西9.7m | 構造 | RCB(鉄筋コンクリートブロック造) |
| 交通 | 【モノレール】てだこ浦西駅: 徒歩約45分 【バス停】西原中学校前: 徒歩約2分 | 価格備考 | - |
| 更新日 | 2026/05/26 | 公開期限 | 2026/06/08 |
この物件の設備・条件
| その他条件 | バス/トイレ別 、 複数棟一括売り |
|---|
物件備考
| 備考 | 1階2室 店舗・施設・2階施設・3階事務所。駐車場28台完備。 |
|---|
【掲載物件について】
・「うちなーらいふ」は、より正確な情報の提供を心がけておりますが、物件情報に誤りがある場合は、ご連絡をお願い致します。
・ご報告いただいた内容につきましては、掲載提供元である不動産会社に直接送信させていただきます。情報が不足している場合や、事実確認ができない場合などは対応できない場合がございます。
・本フォームは物件情報の誤りに関する報告専用です。賃貸・売買に関するお問い合わせには対応しておりませんので、あらかじめご了承ください。
こちらをクリックして物件の間違いを報告する。








