★満室利回り5.3%★2023年10月築のモダン内装の店舗兼共同住宅です♪1F店舗部分はコインランドリーとしてオーナー運営中♪2F,3F室内設備システムキッチン、浴槽付バスルーム、造り付け収納棚等設備充実しております。モダン内装でおしゃれな空間です!お問い合わせお待ちしております♪
物件情報
| 価格 | 1億3,800万円 | 所在階/階数 | - |
|---|---|---|---|
| 建物面積 | 159.8m² / 48.34坪 | 土地面積 | 137.54m² / 41.61坪 |
| 私道負担 | 無し | 土地権利 | 所有 |
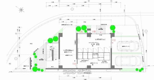
| 間取り | - ( ※1F:店舗、2F:1室、3F:2室) | ペット | - |
| 築年月 | 2023年10月(築2年) | 地目 | 宅地 |
| 引渡し | 相談 | 都市計画 | - |
| 用途地域 | 第一種住居 | 取引態様 | 仲介 |
| 建ぺい率 / 容積率 | 60% / 200% | 所在地 | 宮古島市平良字下里 地図 |
| 接道方向 / 道路幅員 | - | 構造 | RC(鉄筋コンクリート造) |
| 交通 | 【バス停】元うえの: 徒歩約5分 | 価格備考 | 売買金額のほかに、仲介手数料・印紙代・登記費用・固定資産税日割り分・火災保険料等が発生致します。 |
| 更新日 | 2026/05/08 | 公開期限 | 2026/05/21 |
この物件の設備・条件
| その他条件 | バス/トイレ別 、 角地 、 デザイナーズ 、 角部屋 、 一人暮らし向き |
|---|
物件備考
| 備考 | ★現在賃貸中★ 1F 52.8㎡:コインランドリー(オーナー運営) 2F 52.8㎡:1LDK賃料14万(P1台) 3F 54.2㎡:1R賃料10万(P1台)&1R賃料7万(P1台) |
|---|
【掲載物件について】
・「うちなーらいふ」は、より正確な情報の提供を心がけておりますが、物件情報に誤りがある場合は、ご連絡をお願い致します。
・ご報告いただいた内容につきましては、掲載提供元である不動産会社に直接送信させていただきます。情報が不足している場合や、事実確認ができない場合などは対応できない場合がございます。
・本フォームは物件情報の誤りに関する報告専用です。賃貸・売買に関するお問い合わせには対応しておりませんので、あらかじめご了承ください。
こちらをクリックして物件の間違いを報告する。(株)サザンアイランドコンサル
| 住所 | 沖縄県那覇市山下町 11-1 101 地図 |
|---|---|
| 営業時間 | 09:00〜18:00 ・ご案内時間に関してはご相談ください。 |
| 定休日 | 定休日はありません、年末年始はお休みをいただいております。 |
| 免許 | 沖縄県知事免許(4)第3765号 |



































