この物件についてお問い合わせ営 平日(水曜定休) 10:00〜19:00 土日祝 09:00〜18:00 定 水曜日・年末年始
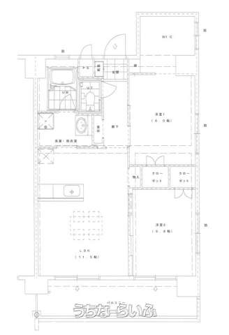
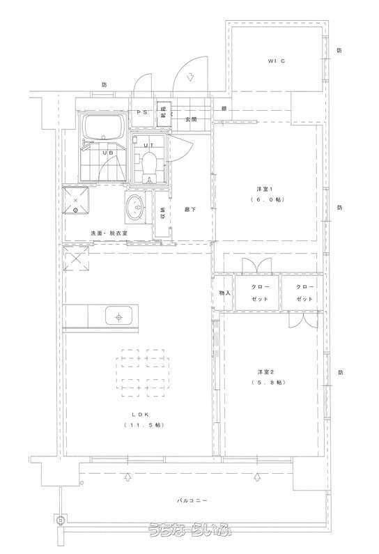
《401号室》
【マンスリー賃貸•SHOHO可能なマンション4階です。住む•貸す•ビジネスの拠点に。商業施設•MAICE建設予定地前】ご内覧ご希望の際はホームトレードセンターまでお気軽にお問い合わせください♪
パノラマ画像
物件情報
| 価格 | 2,883万円 | 専有面積 | 58.83m² / 17.8坪 |
|---|---|---|---|
| 管理費 | 9,990円 | 修繕積立金 | 6,100円 |
| 間取り | 2LDK ( 洋6 洋5.8 LDK11.5 ※2LDK+WIC) | ||
| 築年月 | 2012年03月(築13年) | 敷地面積 | 1800m² / 544.5坪 |
| 駐車場 | 1台無料 ※2台目5,500円/月(要相談) | 引き渡し | 相談 |
| バルコニー | 8.7m² / 2.63坪 | 土地権利 | 持分 |
| 総戸数 | 52戸 | 管理組合 | - |
| 管理形態 | 全部委託 | 所在階/階数 | 4階 (12階建) |
| 取引態様 | 売主 | 建物構造 | RC(鉄筋コンクリート造) |
| ペット | 可 ※犬猫(体高50cm、かつ15kg以内。2匹まで可)※詳しくはお問い合わせください。 | 所在地 | 与那原町東浜 地図 |
| 交通 | 【モノレール】てだこ浦西駅: 徒歩約74分 【バス停】与那: 徒歩約11分 | 価格備考 | ご契約の際には『手付金』『印紙代』が必要です。物件価格によってお手付金の必要額が変わります!心配だな…と思うことは、なんでもご相談ください! |
| 更新日 | 2025/11/02 | 公開期限 | 2025/11/15 |
この物件の設備・条件
| キッチン | 給湯 、 浄水器 、 ガスコンロ 、 対面式キッチン(カウンターキッチン) 、 システムキッチン 、 コンロ3口以上 、 食器洗い乾燥機 |
|---|---|
| バス・トイレ | バス/トイレ別 、 ユニットバス 、 浴槽 、 シャンプードレッサー 、 独立洗面所 、 浴室窓あり 、 温水洗浄便座 |
| 家具・家電 | 冷房 、 暖房 、 乾燥機 |
| セキュリティ | インターフォン 、 防犯カメラ 、 オートロック |
| 室内設備 | 室内洗濯機置き場 、 オール洋間 |
| 収納 | シューズボックス 、 全居室収納 |
| 建物設備・サービス | エレベーター 、 宅配ボックス 、 プロパンガス |
| 放送・通信 | BS(BSアンテナ) 、 インターネット無料 |
| 位置 | 2階以上 、 角部屋 |
| 構造 | フローリング |
| 土地権利 | 所有権 |
| 駐車場 | 駐輪場 |
| その他条件 | ペット可・相談 、 ゴミ毎日OK 、 海が見える 、 日当たり良し 、 眺望良し |
| リフォーム・リノベーション | 水回り設備交換(キッチン・浴室・洗面・トイレ) 、 内装(床・壁・天井など) |
| 設備備考 マンション備考 | WEB上の表記と現地及び仕様書等の表記が異なる場合は現況優先となります。 |
物件備考
| 備考 | 大規模リニューアル&修繕済み:築12年です☆飯田グループの1棟まるまるリノベーションマンションです。自己居住・将来的に投資物件としも。ペット可・24時間ゴミ出し可♪ 【Youtube動画リンク先】 705・1008号室はこちら→https://www.youtube.com/watch?v=4OITpiHGWZU 1Kタイプのご紹介はこちら→https://www.youtube.com/watch?v=33QHTpVVjm4 修繕積立基金:785,000円 管理会社:(株)琉信ハウジング 設備:沖縄電力株式会社、沖縄協同ガス株式会社 ※詳細はお気軽にお問い合わせください |
|---|
【うちなーらいふ】は、より正確な情報の提供を心がけておりますが、物件情報に誤りがある場合は、ご連絡をお願い致します。
ご報告いただいた内容につきましては、掲載提供元である不動産会社に直接送信させていただきます。情報が不足している場合や、事実確認ができない場合などは対応できない場合がございます。
間違いを報告する【飯田グループホールディングス】ホームトレードセンター株式会社 沖縄中央営業所
| 住所 | 沖縄県北谷町上勢頭 550-3 地図 |
|---|---|
| 営業時間 | 平日(水曜定休) 10:00〜19:00 土日祝 09:00〜18:00 |
| 定休日 | 水曜日・年末年始 |
| 免許 | 国土交通大臣免許(3)第8044号 |









































