赤嶺駅徒歩約4分(約260m)、駅から那覇空港駅まで約4分(約2km)とアクセス良好な3LDK角住戸!
物件情報
| 価格 | 5,980万円 | 専有面積 | 71.49m² / 21.62坪 |
|---|---|---|---|
| 管理費 | 13,400円 | 修繕積立金 | 6,440円 |
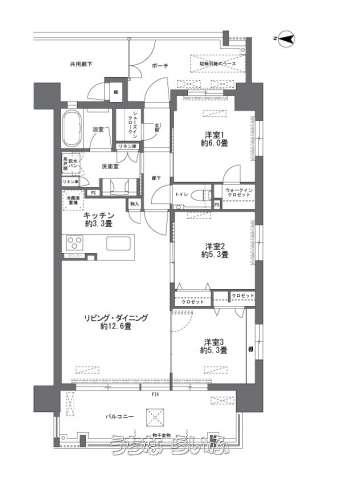
| 間取り | 3LDK ( 洋6 洋5.3 洋5.3 LDK15.9) | ||
| 築年月 | 2024年01月(築2年) | 敷地面積 | 991.1m² / 299.8坪 |
| 駐車場 | 1台12,000円 ※9,000~12,000円/月額 | 引き渡し | 相談 |
| バルコニー | 12.73m² / 3.85坪 | 土地権利 | 持分 |
| 総戸数 | 27戸 | 管理組合 | 有り |
| 管理形態 | 全部委託 | 所在階/階数 | 6階 (10階建) |
| 取引態様 | 仲介 | 建物構造 | RC(鉄筋コンクリート造) |
| ペット | 可 ※規約に従う | 所在地 | 那覇市高良3丁目 地図 |
| 交通 | 【モノレール】赤嶺駅: 徒歩約4分 【バス停】第二ゲート: 徒歩約1分 | 価格備考 | - |
| 更新日 | 2026/05/18 | 公開期限 | 2026/05/31 |
この物件の設備・条件
| キッチン | 給湯 、 ガスコンロ 、 対面式キッチン(カウンターキッチン) 、 システムキッチン 、 コンロ3口以上 、 食器洗い乾燥機 |
|---|---|
| バス・トイレ | バス/トイレ別 、 ユニットバス 、 浴槽 、 独立洗面所 、 浴室乾燥機 |
| セキュリティ | インターフォン 、 防犯カメラ 、 TVホン(TVモニタ付インターホン) 、 オートロック |
| 室内設備 | 室内洗濯機置き場 、 オール洋間 |
| 収納 | シューズボックス 、 全居室収納 |
| 建物設備・サービス | エレベーター 、 宅配ボックス |
| 放送・通信 | BS(BSアンテナ) 、 インターネット対応 、 CS(CSアンテナ) |
| 位置 | 2階以上 、 角部屋 |
| 構造 | ワイドバルコニー |
| 土地権利 | 所有権 |
| 駐車場 | 駐輪場 |
| その他条件 | ペット可・相談 、 ゴミ毎日OK 、 海が見える 、 日当たり良し 、 眺望良し |
| 証明書類あり | 完了検査済証 、 新築時・増改築時の設計図あり 修繕・点検の記録あり |
物件備考
| 備考 | フラットにつながるLDKと洋室3から海を望む6階住戸。玄関前にはプライベート感のある大型ポーチ(8.91m2)あり。2024年1月築のマンションです。 インターネット使用料880円(税込)/月額 |
|---|
【掲載物件について】
・「うちなーらいふ」は、より正確な情報の提供を心がけておりますが、物件情報に誤りがある場合は、ご連絡をお願い致します。
・ご報告いただいた内容につきましては、掲載提供元である不動産会社に直接送信させていただきます。情報が不足している場合や、事実確認ができない場合などは対応できない場合がございます。
・本フォームは物件情報の誤りに関する報告専用です。賃貸・売買に関するお問い合わせには対応しておりませんので、あらかじめご了承ください。
こちらをクリックして物件の間違いを報告する。





























