新築☆2025年9月完成予定☆最上階角部屋☆メゾネットタイプのお部屋です♪沖縄都市モノレール『安里駅』『牧志駅』徒歩5分♪インターネット使用料無料♪便利な宅配ボックス&浴室乾燥機&追焚付き☆安心のオートロック&防犯カメラ付き☆徒歩圏内にスーパーやコンビニ、飲食店も多数あって便利(*^▽^*)国際通りもすぐ行けます☆
物件情報
| 家賃 | 28万円 | 共益費 | 6,000円 |
|---|---|---|---|
| 敷金/礼金 | ナシ/1ヶ月 | 保証金 | - |
| 仲介手数料 | 1.1ヶ月 | ||
| その他費用 | - | 概算初期費用敷金 + 礼金 + 保証金 + 前家賃(1ヶ月分)+ 前管理賃(共益費1ヶ月分)+ 仲介手数料 + その他費用の合計です。 | - |
| 料金備考 | Nサポート990円~1,210円/月・鍵代26,400円・消毒代13,200円~16,500円※入居前・駐車プレート代2,200円・更新事務手数料11,000円(2年毎)・保証会社加入要(法人契約相談可)※退去時エアコンクリーニング代11,000円・退去時清掃費:実費精算※短期違約金:2年未満の解約の場合、家賃1ヶ月必要 | ||
| 間取り | 1LDK ( 洋6 LDK11.64) | ||
| 部屋番号 | 1501号 | 所在階/階数 | 15階 (15階建) |
| ペット | 不可 | 専有面積 | 46.2m² / 13.98坪 |
| 取引態様 | 専任媒介 | 入居 | 相談 (2025年9月完成予定) |
| 契約期間 | 2年更新 | 更新料 | ナシ |
| 保証会社 | 加入要 保証料 契約時:賃料合計の100% 年間:1万円 ※法人契約加入要相談可能 | ||
| 所在地 | 那覇市安里 地図 | ||
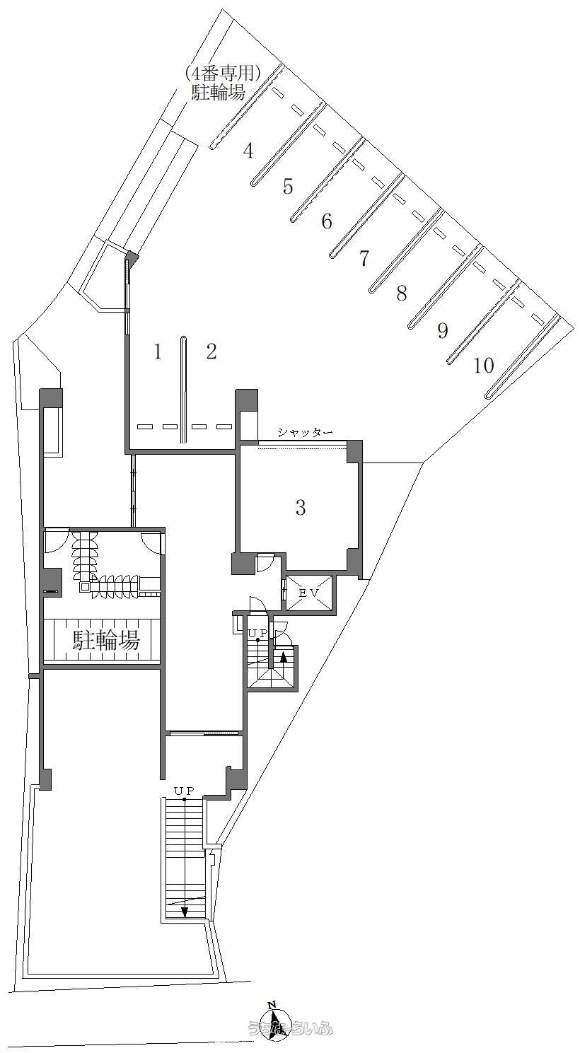
| 駐車場 | 1台22,000円 ※車種要確認 ※台数に限りがあります。都度、空き確認必要。 | 交通 | 【モノレール】安里駅: 徒歩約5分 |
| 更新日 | 2025/11/03 | 公開期限 | 2025/11/16 |
この物件の設備・条件
| キッチン | 給湯 、 ガスコンロ 、 対面式キッチン 、 システムキッチン |
|---|---|
| バス・トイレ | バス/トイレ別 、 ユニットバス 、 浴槽 、 シャンプードレッサー 、 独立洗面所 、 温水洗浄便座 |
| 家具・家電 | 冷房 、 暖房 、 乾燥機 |
| セキュリティ | インターフォン 、 TVモニタ付インターホン 、 オートロック |
| 室内設備 | 室内洗濯機置き場 、 オール洋間 、 メゾネット |
| 建物設備 | エレベーター 、 宅配ボックス 、 プロパンガス |
| 放送・通信 | BS 、 インターネット対応 、 Wi-Fi 、 インターネット無料 |
| 収納 | シューズボックス |
| 位置 | 角部屋 |
| 駐車場 | 駐輪場 |
| その他条件 | ゴミ毎日OK 、 眺望良し 、 保証人不要 |
物件備考
| 備考 | 新築☆2025年9月完成予定☆最上階角部屋☆メゾネットタイプのお部屋です♪沖縄都市モノレール『安里駅』『牧志駅』徒歩5分♪インターネット使用料無料♪便利な宅配ボックス&浴室乾燥機&追焚付き☆安心のオートロック&防犯カメラ付き☆徒歩圏内にスーパーやコンビニ、飲食店も多数あって便利(*^▽^*)国際通りもすぐ行けます☆ |
|---|
建物情報
| 物件名 | CASA VISTA ASATO | 築年月 | 2025年08月(新築) |
|---|---|---|---|
| 建物構造 | RC(鉄筋コンクリート造) | 建物階数 | 15階建 |
【うちなーらいふ】は、より正確な情報の提供を心がけておりますが、物件情報に誤りがある場合は、ご連絡をお願い致します。
ご報告いただいた内容につきましては、掲載提供元である不動産会社に直接送信させていただきます。情報が不足している場合や、事実確認ができない場合などは対応できない場合がございます。
間違いを報告する













