海が観える・イオンライカム目の前!5階角部屋2面バルコニー新築マンション・特徴的な間取りの1LDK+SIC+N "多様なライフスタイルに応える柔軟な居住空間 "駐車場2台込み・⛳シミュレーションゴルフ/ダーツなど共用部が充実 オートロック+防犯カメラ完備 📸360°VR画像もご覧ください📸
360°VR画像
物件情報
| 家賃 | 30万円 | 共益費 | ナシ |
|---|---|---|---|
| 敷金/礼金 | 1ヶ月/ナシ | 保証金 | ナシ |
| 仲介手数料 | 1.1ヶ月 | ||
| その他費用 | - | 概算初期費用敷金 + 礼金 + 保証金 + 前家賃(1ヶ月分)+ 前管理賃(共益費1ヶ月分)+ 仲介手数料 + その他費用の合計です。 | - |
| 料金備考 | ・家賃保証委託料必要 ・ライフサポートプラス入会金2,200円 ・ライフサポートプラス(火災保険+24hサポート費用)1,980円/月 | ||
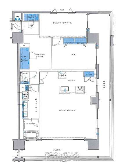
| 間取り | 1SLDK ( 洋8.2 SLDK27.6 ※クリエイティブスペース、ギャラリーホール、納戸) | ||
| 部屋番号 | 510号 | 所在階/階数 | 5階 (14階建) |
| ペット | 相談 ※飼育の場合、ペット保証金:100,000円/匹 | 専有面積 | 105.58m² / 31.93坪 |
| 取引態様 | 代理 | 入居 | 相談 |
| 契約期間 | 定期借家契約 (2年) | 更新料 | 2.75万円 |
| 保証会社 | 加入要 | ||
| 所在地 | 北中城村 地図 | ||
| 駐車場 | 2台無料 縦列 | 交通 | 【バス停】比嘉西原: 徒歩約5分 |
| 更新日 | 2025/12/05 | 公開期限 | 2025/12/18 |
この物件の設備・条件
| キッチン | 給湯 、 ガスコンロ 、 システムキッチン 、 アイランド型キッチン |
|---|---|
| バス・トイレ | バス/トイレ別 、 浴槽 、 シャンプードレッサー 、 独立洗面所 、 温水洗浄便座 |
| 家具・家電 | 冷房 、 洗濯機 、 乾燥機 、 冷蔵庫 |
| セキュリティ | TVモニタ付インターホン 、 オートロック 、 管理人あり |
| 室内設備 | 室内洗濯機置き場 、 オール洋間 |
| 建物設備 | エレベーター 、 宅配ボックス |
| 放送・通信 | インターネット対応 |
| 収納 | ウォークインクローゼット 、 シューズボックス |
| その他条件 | ゴミ毎日OK 、 海が見える 、 日当たり良し 、 眺望良し |
物件備考
| 備考 | ※内覧予約は営業時間内での【お電話のみ受付】となります。行き違い防止のため、メールでの内覧予約は対応致しかねます。ご了承ください。 |
|---|
建物情報
| 物件名 | モンドミオ沖縄リゾート ライカムヒルズ | 築年月 | 2025年09月(新築) |
|---|---|---|---|
| 建物構造 | RC(鉄筋コンクリート造) | 建物階数 | 14階建 |
【うちなーらいふ】は、より正確な情報の提供を心がけておりますが、物件情報に誤りがある場合は、ご連絡をお願い致します。
ご報告いただいた内容につきましては、掲載提供元である不動産会社に直接送信させていただきます。情報が不足している場合や、事実確認ができない場合などは対応できない場合がございます。
間違いを報告する





































