この物件についてお問い合わせ営 平日 09:30〜17:30 ご来店・ご案内は完全予約制とさせていただきます。事前にお電話またはメールにてご予約ください。 定 土曜・日曜・祝祭日
連帯保証人不要!家具家電付き・敷金ナシ、仲介手数料ナシ・契約金クレジットカード払い可能・ホームセキュリティ(ALSOK)対応で安心です!お気軽にお問い合わせください!
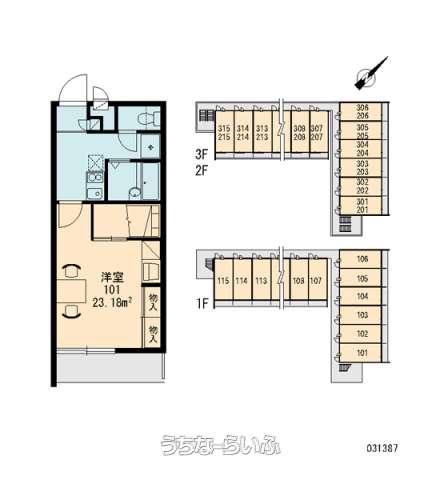
賃貸アパートレオパレス北谷Ⅱ 114号 北谷町北谷1丁目
賃料6.3万円
物件情報
| 家賃 | 6.3万円 | 共益費 | 6,500円 |
|---|---|---|---|
| 敷金/礼金 | ナシ/1ヶ月 | 保証金 | ナシ |
| 仲介手数料 | - | ||
| その他費用 | - | 概算初期費用敷金 + 礼金 + 保証金 + 前家賃(1ヶ月分)+ 前管理賃(共益費1ヶ月分)+ 仲介手数料 + その他費用の合計です。 | - |
| 料金備考 | ■環境維持費:月額550円(税込) ■鍵交換費:16,500円(税込) ■退去時清掃費(契約時):41,800円(税込) ■抗菌施工(任意):18,040円~23,760円(税込) ■入居者サポートシステムプラス(任意):18,975円(税込) ■保証委託料(個人契約のみ):利用料の100%~120%(契約時)/10,000円(2年目以降・年毎)■インターネット利用料:有料 ■水道料金:不要 | ||
| 間取り | 1K ( 洋8 K2) | ||
| 部屋番号 | 114号 | 所在階/階数 | 1階 (3階建) |
| ペット | - | 専有面積 | 23.18m² / 7.01坪 |
| 取引態様 | 仲介 | 入居 | 相談 |
| 契約期間 | - | 更新料 | - |
| 保証会社 | - | ||
| 所在地 | 北谷町北谷1丁目 地図 | ||
| 駐車場 | ナシ ※要空き確認 | 交通 | 【バス停】北谷1丁目: 徒歩約2分 |
| 更新日 | 2026/05/01 | 公開期限 | 2026/05/14 |
・近隣の学校 ※ うちなーらいふ調査につき学校区の物件か不動産会社へご確認ください
小学校区域
北玉小学校(字吉原 一部、美浜 1丁目および2丁目、北谷 全域、北前 全域、字玉上 全域、字大村 全域)
中学校区域
桑江中学校(字砂辺 全域、字浜川 全域、字宮城 全域、字港 全域、美浜 全域、字美浜 全域、北谷 全域、北前 全域、字玉上 全域、字吉原 一部、字大村 全域、字桑江 一部、字伊平 一部)
この物件の設備・条件
| キッチン | 給湯 、 IHコンロ 、 システムキッチン |
|---|---|
| バス・トイレ | バス/トイレ別 、 温水洗浄便座 |
| 家具・家電 | 冷房 、 暖房 、 洗濯機 、 乾燥機 、 冷蔵庫 、 テレビ 、 家具/家電付き |
| セキュリティ | インターフォン 、 TVモニタ付インターホン |
| 室内設備 | 室内洗濯機置き場 、 オール洋間 |
| 建物設備 | プロパンガス |
| 放送・通信 | インターネット対応 、 CS 、 Wi-Fi |
| 収納 | シューズボックス |
| 駐車場 | 駐輪場 |
| その他条件 | 日当たり良し 、 保証人不要 、 外国人入居可 |
物件備考
| 備考 | ※物件掲載内容と現況に相違がある場合は現況を優先と致します。 物件名:『レオパレス北谷Ⅱ』 お気軽にお問い合わせ下さい! 沖縄不動産フィールド(株) TEL:098-955-1234 ↓↓↓↓下記ページに最新物件情報多数あり↓↓↓↓ |
|---|
建物情報

| 物件名 | レオパレス北谷Ⅱ | 築年月 | 2007年02月(築19年) |
|---|---|---|---|
| 建物構造 | RC(鉄筋コンクリート造) | 建物階数 | 3階建 |
【掲載物件について】
・「うちなーらいふ」は、より正確な情報の提供を心がけておりますが、物件情報に誤りがある場合は、ご連絡をお願い致します。
・ご報告いただいた内容につきましては、掲載提供元である不動産会社に直接送信させていただきます。情報が不足している場合や、事実確認ができない場合などは対応できない場合がございます。
・本フォームは物件情報の誤りに関する報告専用です。賃貸・売買に関するお問い合わせには対応しておりませんので、あらかじめご了承ください。
こちらをクリックして物件の間違いを報告する。沖縄不動産フィールド株式会社
| 住所 | 沖縄県那覇市辻 1-9-25 サンハイツ喜和 202 地図 |
|---|---|
| 営業時間 | 平日 09:30〜17:30 ご来店・ご案内は完全予約制とさせていただきます。事前にお電話またはメールにてご予約ください。 |
| 定休日 | 土曜・日曜・祝祭日 |
| 免許 | 沖縄県知事免許(3)第4411号 |























