沖縄市明道の住宅街の中にある保育施設に空きが出ます!
物件情報
| 家賃 | 49.5万円 | 共益費 | - |
|---|---|---|---|
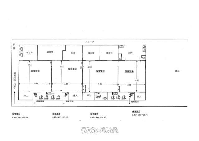
| 床面積 | 167.98m² / 50.81坪 | ||
| 敷金/礼金 | 3ヶ月/- | 保証金 | - |
| 仲介手数料 | 1ヶ月 | ||
| 料金備考 | - | ||
| 部屋番号 | - | 所在階/階数 | 1階 (地上1階/地下1階建) |
| 物件種目 | 賃貸その他 | 取引態様 | 専属専任媒介 |
| 契約期間 | 2年更新 | 更新料 | ナシ |
| 保証会社 | 加入要 保証会社、火災保険 | ||
| 入居 | 相談 (令和8年5月) | ||
| 駐車場 | 5台無料 ※共用のため相談可能 | 所在地 | 沖縄市明道1丁目 地図 |
| 交通 | - | 築年月 | 2013年07月(築12年) |
| 間取り備考 | - | ||
| 更新日 | 2026/03/24 | 公開期限 | 2026/04/06 |
物件備考
| 備考 | 令和8年5月より契約可能。用途地域第一種低層住居専用地域 |
|---|
【掲載物件について】
・「うちなーらいふ」は、より正確な情報の提供を心がけておりますが、物件情報に誤りがある場合は、ご連絡をお願い致します。
・ご報告いただいた内容につきましては、掲載提供元である不動産会社に直接送信させていただきます。情報が不足している場合や、事実確認ができない場合などは対応できない場合がございます。
・本フォームは物件情報の誤りに関する報告専用です。賃貸・売買に関するお問い合わせには対応しておりませんので、あらかじめご了承ください。
こちらをクリックして物件の間違いを報告する。







