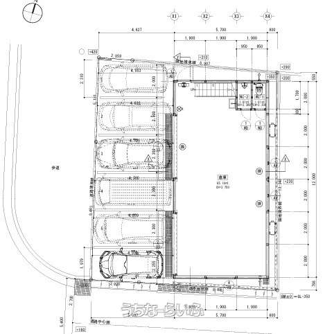
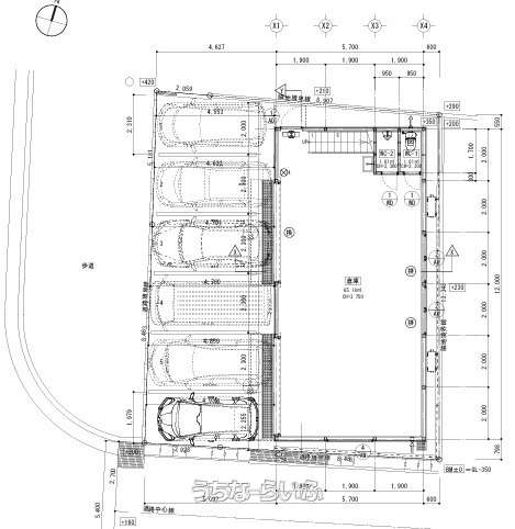
糸満市国道331号線沿い那覇空港から車で約15分に便利な立地の約41坪新築事務所兼倉庫、エアコン2台、電動シャッター2か所、太陽光パネルと蓄電器があり電気代が安くなります。駐車場6台
賃貸事務所・倉庫HZJLAB2 糸満市糸満
賃料44万円
物件情報
| 家賃 | 44万円 | 共益費 | 11,000円 |
|---|---|---|---|
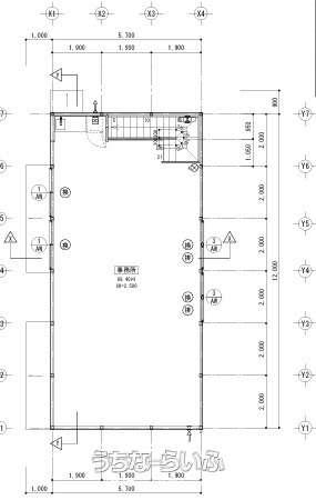
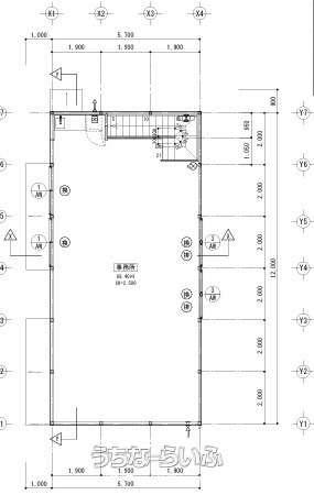
| 床面積 | 136.8m² / 41.38坪 | ||
| 敷金/礼金 | 2ヶ月/1ヶ月 | 保証金 | ナシ |
| 仲介手数料 | 1ヶ月 | ||
| 料金備考 | - | ||
| 部屋番号 | - | 所在階/階数 | 2階 (2階建) |
| 物件種目 | 賃貸事務所・倉庫 | 取引態様 | 専属専任媒介 |
| 契約期間 | 定期借家契約 (2年) | 更新料 | 1.65万円 |
| 保証会社 | 加入要 家賃保証・入居者保険必須 | ||
| 入居 | 相談 | ||
| 駐車場 | 6台無料 並列 ※普通乗用車4台、軽自動車2台 | 所在地 | 糸満市糸満 地図 |
| 交通 | 【バス停】糸満市役所入口: 徒歩約2分 | 築年月 | 2026年01月(新築) |
| 間取り備考 | - | ||
| 更新日 | 2026/03/19 | 公開期限 | 2026/04/01 |
この物件の設備・条件
| 外観・設備 | 看板取付スペースあり 、 シャッター付き |
|---|---|
| 内装・設備 | エアコン (冷暖房あり) 、 換気口あり 、 トイレ 、 男女別トイレ 、 温水洗浄便座 |
| セキュリティ | 電動シャッター |
| 立地 | 海が近い(500m以内) |
| 設備備考 | 屋根に太陽光パネルが30枚とパワコン2台、蓄電池が設置させているため電気料が安くなります。 |
物件備考
| 備考 | 事前に業種をお伝えください。 |
|---|
【掲載物件について】
・「うちなーらいふ」は、より正確な情報の提供を心がけておりますが、物件情報に誤りがある場合は、ご連絡をお願い致します。
・ご報告いただいた内容につきましては、掲載提供元である不動産会社に直接送信させていただきます。情報が不足している場合や、事実確認ができない場合などは対応できない場合がございます。
・本フォームは物件情報の誤りに関する報告専用です。賃貸・売買に関するお問い合わせには対応しておりませんので、あらかじめご了承ください。
こちらをクリックして物件の間違いを報告する。
































