□城辺友利エリアの高台に建つオーシャンビュー□間取りは2世帯住宅として使用可能な造りです(1階・2階に各々キッチン・バス・トイレあり)□宮古空港から車で約16分□高台なので陽当り・風通し共に最高です□眺望最高です□広々としたルーフバルコニーからは海が臨めます□土地も約227坪あり駐車スペースも広く取れます□所有者居住中につき内覧は事前予約制です□滅多に出てこない物件です□詳細等はお気軽にお問い合わせください
物件情報
| 価格 | 6,280万円 | 階数 | 2階建て |
|---|---|---|---|
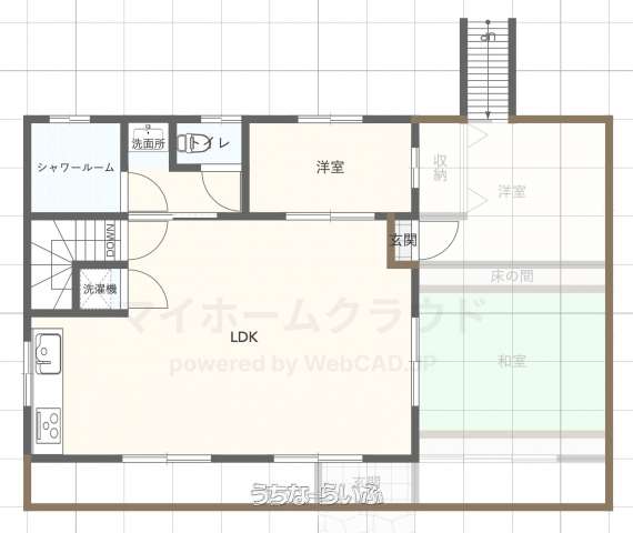
| 間取り | 5LDK ( ※2階にもキッチン・バス・トイレあり(2世帯住宅)) | ||
| 建物面積 | 124.72m² / 37.72坪 | 土地面積 | 751.3m² / 227.26坪 |
| 私道負担 | - | 築年月 | 2003年01月(築23年) |
| 駐車場 | 5台 •6台目 | 地目 | 宅地 |
| 引き渡し | 相談 | 接道方向 / 道路幅員 | 東 |
| 土地権利 | 所有 | 都市計画 | 非線引 |
| 用途地域 | 無指定 | 建物構造 | RC(鉄筋コンクリート造) |
| 取引態様 | 専属専任媒介 | 所在地 | 宮古島市城辺字友利 |
| 建ぺい率 / 容積率 | 60% / 200% | 交通 | - |
| 価格備考 | - | ||
| 更新日 | 2026/04/11 | 公開期限 | 2026/04/24 |
この物件の設備・条件
| キッチン | 給湯 、 ガスコンロ |
|---|---|
| バス・トイレ | バス/トイレ別 、 浴槽 、 独立洗面所 、 トイレ2ヶ所 |
| 家具・家電 | 冷房 、 暖房 |
| 室内設備 | 室内洗濯機置き場 |
| 立地・土地特徴 | 角地 、 高台に立地 |
| 建物設備 | 上水道 、 プロパンガス 、 庭付き |
| 構造 | 二世帯住宅 |
| その他条件 | 海が見える 、 日当たり良し 、 眺望良し 、 静かな場所 |
物件備考
| 備考 | ■現況: 所有者居住中 |
|---|
【掲載物件について】
・「うちなーらいふ」は、より正確な情報の提供を心がけておりますが、物件情報に誤りがある場合は、ご連絡をお願い致します。
・ご報告いただいた内容につきましては、掲載提供元である不動産会社に直接送信させていただきます。情報が不足している場合や、事実確認ができない場合などは対応できない場合がございます。
・本フォームは物件情報の誤りに関する報告専用です。賃貸・売買に関するお問い合わせには対応しておりませんので、あらかじめご了承ください。
こちらをクリックして物件の間違いを報告する。













