この物件についてお問い合わせ営 09:00〜17:30 内覧のご予約は営業時間外でも柔軟に対応いたします 定 土日祝 及び 17:30以降はご予約制とさせていただいております。 
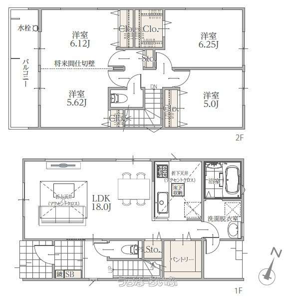
【1号棟】並列2台駐車可能✨食器洗い乾燥機とパントリー付き✨脱衣所から直接外に出られる勝手口も便利。ゴミの一時置きや、洗濯物を干すのに使えます。✨スーパーまで徒歩6分。毎日の買い物に便利♪✨小学校まで徒歩圏内なので、お子様の通学も安心です♪安心の子育て環境✨2階の部屋は、間仕切りで2部屋に分けられます。お子さんが小さいうちは広々と使い、成長に合わせて部屋を分ける事が出来ます✨ ■美東小学校まで徒歩10分 ■沖縄東中学校まで徒歩13分 ■美東幼稚園まで徒歩10分 ■サンエーV21食品館まで徒歩6分 ■フレッシュプラザユニオンまで徒歩8分 ■あわせモールまで徒歩8分 ■マツモトキヨシまで徒歩7分
360°VR画像
パノラマ画像
物件情報
| 価格 | 3,998万円 | 階数 | 2階建て | 
|---|---|---|---|
| 間取り | 3LDK ( 洋11.7 洋6.2 洋5 LDK18 ※パントリー、ウォークインクローゼットあり) | ||
| 建物面積 | 99.77m² / 30.18坪 | 土地面積 | 125.53m² / 37.97坪 | 
| 私道負担 | 無し | 築年月 | 2025年07月(新築) | 
| 駐車場 | 2台 並列 ※車種によっては駐車できる台数が異なる可能性がございます。 | 地目 | 宅地 | 
| 引き渡し | 相談 (担当者へお問合せください。) | 接道方向 / 道路幅員 | 西4.1m | 
| 土地権利 | 所有 | 都市計画 | 非線引 | 
| 用途地域 | 無指定 | 建物構造 | 木造 | 
| 取引態様 | 仲介 | 所在地 | 沖縄市古謝1丁目 地図 | 
| 建ぺい率 / 容積率 | 70% / 200% | 交通 | 【モノレール】てだこ浦西駅: バス乗車62分/徒歩約195分 【バス停】古謝: 徒歩約3分 | 
| 価格備考 | ご契約時に、手付金(売買代金に充当されます)と契約書に貼付する印紙が必要となります。 住宅ローンの手続き代行費用や事務手数料はいただきません♪ | ||
| 更新日 | 2025/10/31 | 公開期限 | 2025/11/13 | 
この物件の設備・条件
| キッチン | 省エネ給湯器 、 浄水器 、 ガスコンロ 、 コンロ三口以上 、 対面式キッチン(カウンターキッチン) 、 システムキッチン 、 パントリー(食器・食品の収納庫) 、 食器洗乾燥機 | 
|---|---|
| バス・トイレ | バス/トイレ別 、 ユニットバス 、 シャンプードレッサー 、 独立洗面所 、 追焚機能 、 浴室乾燥機 、 浴室暖房 、 トイレ2ヶ所 、 温水洗浄便座 | 
| セキュリティ | インターフォン 、 TVホン(TVモニタ付インターホン) 、 ディンプルキー | 
| 収納 | ウォークインクローゼット 、 シューズボックス 、 床下収納 、 全居室収納 | 
| 立地・土地特徴 | 整形地 、 平坦地 | 
| 建物設備 | 上水道 、 下水道 、 24時間換気システム 、 宅配ボックス 、 プロパンガス | 
| その他条件 | 日当たり良し 、 静かな場所 | 
| 設備備考 | 設備表記が現況と相違する場合は、現況を優先とします。 | 
物件備考
| 備考 | ◇お支払い例)月々77,874円 ※借入額3,998万円、金利0.8%、借入期間40年、ボーナス払いあり(10万円×年2回)、頭金なしの場合 どうせ家賃を払うなら、そのお金を住宅購入資金にして憧れのマイホームを手に入れてみませんか? 今の生活・お家賃に合わせた、お客様にとってピッタリなお家探しをサポートします♪ 住宅ローンのご相談やお手続きも、ファイナンシャルプランナーの在籍する当店なら任せて安心♪ 他にも多数物件を取り揃えておりますので、あなたにピッタリなお家をご紹介して差し上げます☆ 夜間でも土日祝でも、内覧のご希望に応えますので、まずはお気軽にご連絡ください♪ 目指せ沖縄満足度ナンバーワン!を合言葉に、沖縄で一番の迅速・丁寧な対応を心掛けています♪ ■現況: 完成済 | 
|---|
【うちなーらいふ】は、より正確な情報の提供を心がけておりますが、物件情報に誤りがある場合は、ご連絡をお願い致します。
ご報告いただいた内容につきましては、掲載提供元である不動産会社に直接送信させていただきます。情報が不足している場合や、事実確認ができない場合などは対応できない場合がございます。
間違いを報告するコーラルハウジング株式会社
| 住所 | 沖縄県うるま市石川伊波 993 地図 | 
|---|---|
| 営業時間 | 09:00〜17:30 内覧のご予約は営業時間外でも柔軟に対応いたします | 
| 定休日 | 土日祝 及び 17:30以降はご予約制とさせていただいております。 | 
| 免許 | 沖縄県知事(1)第5575号 | 

 住居用
 住居用 事業用
 事業用 土地
 土地 駐車場
 駐車場 土地
 土地 マンション
 マンション 一戸建て
 一戸建て その他
 その他




































