★☆内覧出来ます☆★【牧港小学校まで徒歩1分】庭付き平屋一戸建て★住宅だけでなく学童、介護施設をお探しの方にもおススメ★駐車場並列3台可能で造成工事次第で7台以上可能★外階段も有りで屋上でBBQ出来ます★タウンプラザかねひで城間学園通り市場まで車で5分★買い物にも便利な立地★浦添商業高等学校まで徒歩10分★角地★上下水道★土・日・祝日営業★まずはお気軽にお問合せ下さい
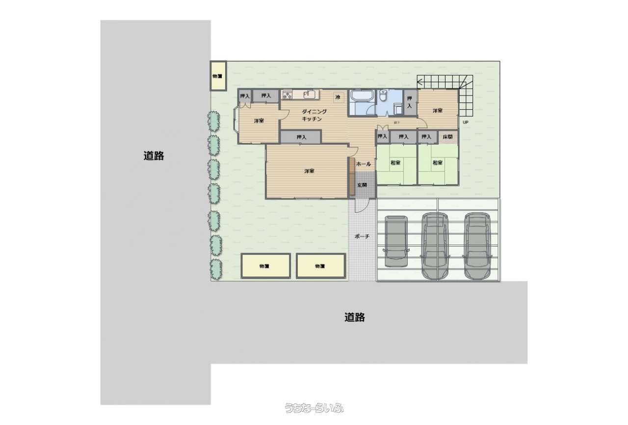
売買一戸建て浦添市牧港2丁目 5DK
価格 7,500万円
物件情報
| 価格 | 7,500万円 | 階数 | 1階建て |
|---|---|---|---|
| 間取り | 5DK | ||
| 建物面積 | 79.66m² / 24.1坪 | 土地面積 | 398m² / 120.39坪 |
| 私道負担 | - | 築年月 | 1988年10月(築37年) |
| 駐車場 | 3台 並列 | 地目 | 宅地 |
| 引き渡し | 相談 | 接道方向 / 道路幅員 | 南東6m |
| 土地権利 | 所有 | 都市計画 | 市街化区域 |
| 用途地域 | 第一種中高層 | 建物構造 | RC(鉄筋コンクリート造) |
| 取引態様 | 仲介 | 所在地 | 浦添市牧港2丁目 地図 |
| 建ぺい率 / 容積率 | 60% / 200% | 交通 | 【バス停】公民館入口(コンベンション向け): 徒歩約3分 |
| 価格備考 | - | ||
| 更新日 | 2026/03/03 | 公開期限 | 2026/03/16 |
この物件の設備・条件
| キッチン | ガスコンロ 、 コンロ三口以上 、 システムキッチン |
|---|---|
| バス・トイレ | バス/トイレ別 、 浴槽 、 シャンプードレッサー |
| 立地・土地特徴 | 角地 、 整形地 、 平坦地 |
| 建物設備 | 上水道 、 下水道 、 南面バルコニー 、 庭付き 、 庭10坪以上 |
| その他条件 | 日当たり良し 、 静かな場所 |
物件備考
| 備考 | ■現況: 空き家 |
|---|
【うちなーらいふ】は、より正確な情報の提供を心がけておりますが、物件情報に誤りがある場合は、ご連絡をお願い致します。
ご報告いただいた内容につきましては、掲載提供元である不動産会社に直接送信させていただきます。情報が不足している場合や、事実確認ができない場合などは対応できない場合がございます。
間違いを報告する






























