スキップフロアーデザインでハイセンスなオシャレ様にお勧めです♪✨駐車3台完備、屋上ではBBQやホームパーティーなどを楽しむ事が出来ます♪✨民泊許可取得済♪家具家電設備付きでご購入後すぐに生活や民泊運用スタート可能です♪✨自己居住は勿論ですが、民泊業にも向いていますので県外観光客やインバウンド需要を見越した旅館運用もお勧め✨北部の【ジャングリア】へアクセスする為に、高速道路西原ICまで車で約8分圏内、那覇空港や北谷アメリカンヴィレッジへのアクセスも車で約20~25分圏と東西南北への交通機動性も高く、車で8分の場所にはサンエーマチナトシティ跡に【ドン・キホーテ】の開業予定も決まりました♪✨物件道向かいにはコンビニありでナイスな立地環境です♪(*‘∀‘)✨事前予約にてご内覧可能!是非連絡お待ちしております!
物件情報
| 価格 | 7,150万円 | 階数 | 4階建て |
|---|---|---|---|
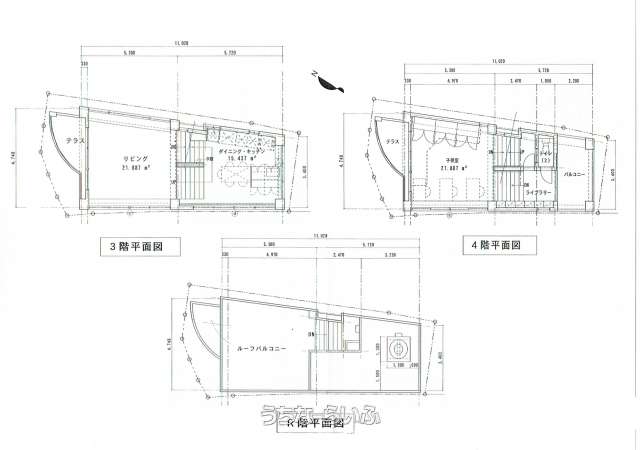
| 間取り | 3LDK ( 洋5.6 洋8.1 洋13.2 LDK22 ※スキップフロアー(各階ごとにお部屋あり)・ワードローブ・1階アトリエ) | ||
| 建物面積 | 123.71m² / 37.42坪 | 土地面積 | 64.74m² / 19.58坪 |
| 私道負担 | - | 築年月 | 2001年07月(築24年) |
| 駐車場 | 3台 並列 ※軽自動車含む | 地目 | 宅地 |
| 引き渡し | 相談 | 接道方向 / 道路幅員 | 西12.7m、 北西5.9m |
| 土地権利 | 所有 | 都市計画 | 市街化区域 |
| 用途地域 | 第一種住居 | 建物構造 | RC(鉄筋コンクリート造) |
| 取引態様 | 仲介 | 所在地 | 浦添市牧港1丁目 地図 |
| 建ぺい率 / 容積率 | 70% / 200% | 交通 | 【バス停】公民館入口: 徒歩約6分 |
| 価格備考 | - | ||
| 更新日 | 2026/04/30 | 公開期限 | 2026/05/13 |
この物件の設備・条件
| キッチン | 給湯 、 ガスコンロ 、 コンロ三口以上 、 対面式キッチン(カウンターキッチン) 、 システムキッチン 、 食器洗乾燥機 |
|---|---|
| バス・トイレ | バス/トイレ別 、 独立洗面所 、 トイレ2ヶ所 、 温水洗浄便座 |
| 家具・家電 | 冷房 、 暖房 、 洗濯機 、 冷蔵庫 、 テレビ 、 家具/家電付き |
| 室内設備 | 室内洗濯機置き場 |
| 収納 | シューズボックス |
| 立地・土地特徴 | 角地 、 平坦地 |
| 建物設備 | 上水道 、 下水道 、 プロパンガス 、 オール洋間 、 ルーフバルコニー 、 ロフト |
| 構造 | デザイナーズ |
| 評価・証明書 | 完了検査済証 、 新築時・増改築時の設計図あり |
| その他条件 | 日当たり良し 、 眺望良し |
物件備考
| 備考 | ★固定資産税:115,800円/年(令和6年度) ★牧港小学校:徒歩8分(約650m) ★港川中学校:徒歩19分(約1.4km) ※駐車3台、屋上も使用でき眺めも良くホームグランピングやBBQも楽しむ事が出来ます✨ 宿泊施設としても使用可能です。(現在許可取得済) ◤令和7年 HOTERU RED DRAGON 収支◢ 宿泊売上 :7,975,668円 物件販売価格:715,000,000円 表面利回り :11.15% ■現況: 空き家 |
|---|
【掲載物件について】
・「うちなーらいふ」は、より正確な情報の提供を心がけておりますが、物件情報に誤りがある場合は、ご連絡をお願い致します。
・ご報告いただいた内容につきましては、掲載提供元である不動産会社に直接送信させていただきます。情報が不足している場合や、事実確認ができない場合などは対応できない場合がございます。
・本フォームは物件情報の誤りに関する報告専用です。賃貸・売買に関するお問い合わせには対応しておりませんので、あらかじめご了承ください。
こちらをクリックして物件の間違いを報告する。


























