【新築☆イージーオーダー可能】今なら外壁の色、屋根の色、内装等お選びいただけます
【RC造に負けないレンガ造り住宅】管理費 積立金 駐車代 0円!モノレール首里駅 徒歩13分。約1万個のレンガを一つ一つ手積みしたレンガ積み住宅。首里の高台から望む海の見える景色でワンランク上の邸宅を是非一度ご覧ください。
売買一戸建て那覇市首里金城町4丁目 4LDK
価格 5,580万円
パノラマ画像
物件情報
| 価格 | 5,580万円 | 階数 | 2階建て |
|---|---|---|---|
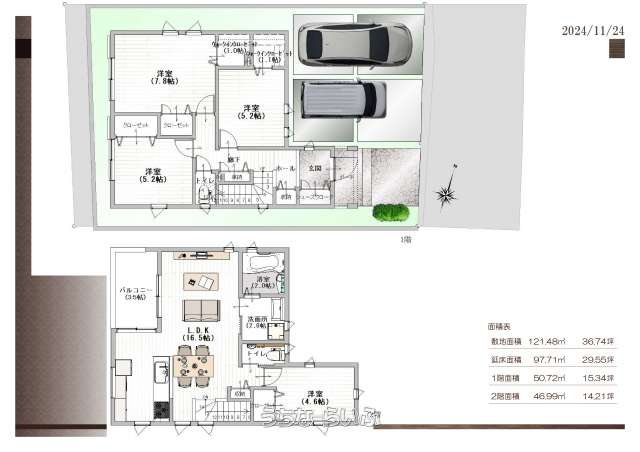
| 間取り | 4LDK ( 洋7.8 洋5.2 洋5.2 洋4.6 LDK16.5) | ||
| 建物面積 | 97.71m² / 29.56坪 | 土地面積 | 123.8m² / 37.44坪 |
| 私道負担 | 無し | 築年月 | 2025年12月(新築) |
| 駐車場 | 2台 並列 | 地目 | 宅地 |
| 引き渡し | 相談 | 接道方向 / 道路幅員 | 東4m |
| 土地権利 | 所有 | 都市計画 | 市街化区域 |
| 用途地域 | 第一種低層 | 建物構造 | 木造 |
| 取引態様 | 売主 | 所在地 | 那覇市首里金城町4丁目 地図 |
| 建ぺい率 / 容積率 | 50% / 100% | 交通 | 【モノレール】首里駅: 徒歩約13分 【バス停】金城町: 徒歩約4分 |
| 価格備考 | - | ||
| 更新日 | 2025/11/07 | 公開期限 | 2025/11/20 |
この物件の設備・条件
| キッチン | 省エネ給湯器 、 ガスコンロ 、 コンロ三口以上 、 対面式キッチン(カウンターキッチン) 、 システムキッチン 、 食器洗乾燥機 |
|---|---|
| バス・トイレ | バス/トイレ別 、 ユニットバス 、 浴槽 、 シャンプードレッサー 、 独立洗面所 、 追焚機能 、 浴室乾燥機 、 浴室1坪以上 、 浴室暖房 、 トイレ2ヶ所 、 タンクレストイレ 、 温水洗浄便座 |
| セキュリティ | インターフォン 、 TVホン(TVモニタ付インターホン) 、 ディンプルキー 、 防犯用ガラス |
| 室内設備 | 室内洗濯機置き場 |
| 収納 | ウォークインクローゼット 、 シューズインクローク 、 シューズボックス 、 床下収納 、 全居室収納 、 階段下収納 |
| 立地・土地特徴 | 高台に立地 、 整形地 、 空港近く 、 駅近く 、 隣の建物との間隔が広い |
| 建物設備 | 上水道 、 下水道 、 複層ガラス 、 24時間換気システム 、 オール洋間 、 ルーフバルコニー 、 テラス ルーフバルコニー 、 南面バルコニー 、 吹抜 |
| 構造 | バリアフリー 、 デザイナーズ 、 ノンホルムアルデヒド 、 全室2面採光 |
| 瑕疵保証あり | 瑕疵保険(国交省指定法人)による保証 |
| 駐車場 | 駐輪場 |
| その他条件 | 海が見える 、 日当たり良し 、 眺望良し 、 静かな場所 |
物件備考
| 備考 | 【新築☆イージーオーダー可能】今なら外壁の色、屋根の色、内装等お選びいただけます 【RC造に負けないレンガ造り住宅】管理費 積立金 駐車代 0円!モノレール首里駅 徒歩13分。約1万個のレンガを一つ一つ手積みしたレンガ積み住宅。首里の高台から望む海の見える景色でワンランク上の邸宅を是非一度ご覧ください。 ■現況: 未着工 ■建築確認番号: 沖確R06130114 |
|---|
【うちなーらいふ】は、より正確な情報の提供を心がけておりますが、物件情報に誤りがある場合は、ご連絡をお願い致します。
ご報告いただいた内容につきましては、掲載提供元である不動産会社に直接送信させていただきます。情報が不足している場合や、事実確認ができない場合などは対応できない場合がございます。
間違いを報告するファインライフ・カンパニー(株)沖縄支社
| 住所 | 沖縄県豊見城市豊崎 3-81 豊崎ガーデン 地図 |
|---|---|
| 営業時間 | 09:00〜18:00 |
| 定休日 | 水・日・お盆・年末年始・GW |
| 免許 | 国土交通大臣免許 (2)第009479号 |

































