人気の新都心エリア・5階建て5LDK各フロアリノベーション済み!イタリアのモダン家具ブランド【Minotti】の家具を備え付けており、ラグジュアリーな空間を堪能できます。ご内覧や詳細等のお問い合わせはお気軽に♬
物件情報
| 価格 | 4億7,000万円 | 階数 | 5階建て |
|---|---|---|---|
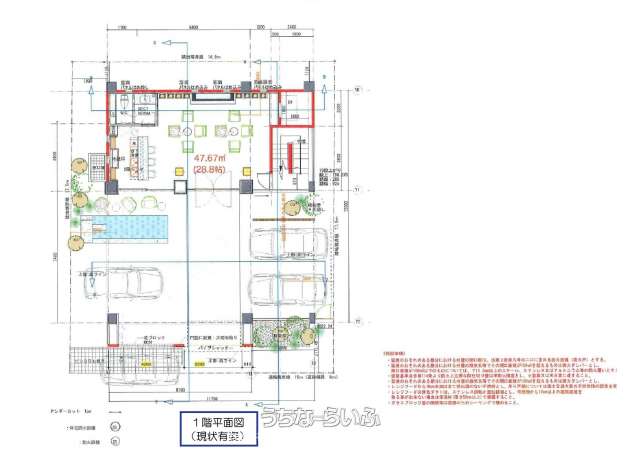
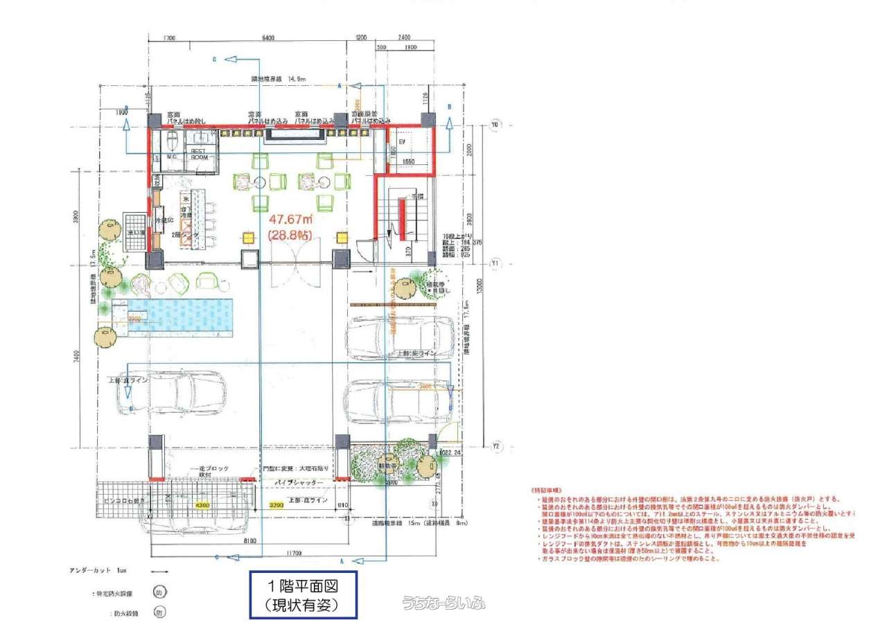
| 間取り | 5LDK | ||
| 建物面積 | 476.11m² / 144.02坪 | 土地面積 | 264.46m² / 80坪 |
| 私道負担 | - | 築年月 | 2005年08月(築20年) |
| 駐車場 | 5台 | 地目 | 宅地 |
| 引き渡し | 相談 | 接道方向 / 道路幅員 | 北西6m |
| 土地権利 | 所有 | 都市計画 | 市街化区域 |
| 用途地域 | 第二種住居 | 建物構造 | RC(鉄筋コンクリート造) |
| 取引態様 | 仲介 | 所在地 | 那覇市銘苅3丁目 地図 |
| 建ぺい率 / 容積率 | 60% / 200% | 交通 | 【モノレール】古島駅: 徒歩約7分 |
| 価格備考 | - | ||
| 更新日 | 2025/10/27 | 公開期限 | 2025/11/09 |
この物件の設備・条件
| キッチン | 給湯 、 ガスコンロ 、 コンロ三口以上 、 対面式キッチン(カウンターキッチン) 、 システムキッチン 、 パントリー(食器・食品の収納庫) 、 食器洗乾燥機 、 アイランド型キッチン |
|---|---|
| バス・トイレ | バス/トイレ別 、 浴槽 、 独立洗面所 、 浴室乾燥機 、 浴室1坪以上 、 温水洗浄便座 |
| 家具・家電 | 冷房 、 暖房 、 家具/家電付き |
| セキュリティ | 電動シャッター |
| 室内設備 | 室内洗濯機置き場 、 防音室 |
| 収納 | ウォークインクローゼット 、 全居室収納 |
| 立地・土地特徴 | 平坦地 、 駅近く |
| 建物設備 | 上水道 、 下水道 、 エレベーター 、 ルーフバルコニー 、 テラス ルーフバルコニー |
| 構造 | デザイナーズ 、 全居室6畳以上 |
| その他条件 | 眺望良し |
| リフォーム・リノベーション | 水回り設備交換(キッチン・浴室・洗面・トイレ) 、 内装(床・壁・天井など) 、 外装・その他(屋根・外壁など) 、 リノベーション済 |
物件備考
| 備考 | ・トレーニングルーム、防音室設置・室内エレベーター付き・電動シャッター ■現況: 空き家 |
|---|
【うちなーらいふ】は、より正確な情報の提供を心がけておりますが、物件情報に誤りがある場合は、ご連絡をお願い致します。
ご報告いただいた内容につきましては、掲載提供元である不動産会社に直接送信させていただきます。情報が不足している場合や、事実確認ができない場合などは対応できない場合がございます。
間違いを報告する株式会社 レディースエステート&ビジネス
| 住所 | 沖縄県浦添市仲西 3-15-2 地図 |
|---|---|
| 営業時間 | 月-金 08:45〜17:45 |
| 定休日 | 土曜・日曜・祝祭日(年末年始) |
| 免許 | 沖縄県知事免許番号(2)第4961号 |

















