◇オーシャンビューの平家!◇5LDK!◇
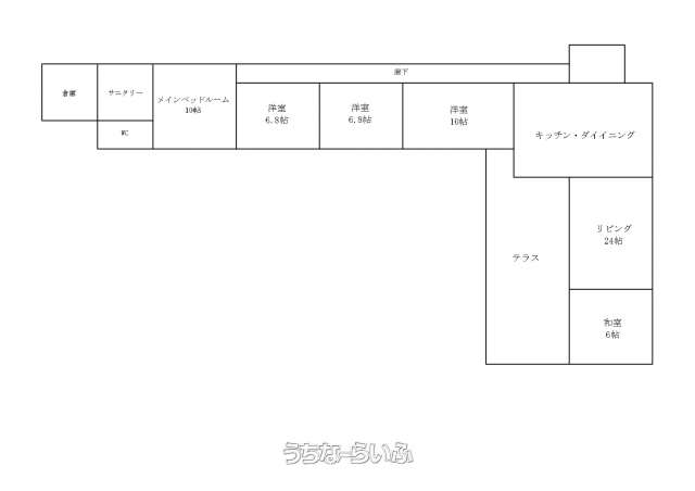
売買一戸建て宮古島市平良字久貝 5LDK
価格 2億5,000万円
物件情報
| 価格 | 2億5,000万円 | 階数 | 1階建て |
|---|---|---|---|
| 間取り | 5LDK | ||
| 建物面積 | 205.79m² / 62.25坪 | 土地面積 | 953.3m² / 288.37坪 |
| 私道負担 | - | 築年月 | 2011年06月(築14年) |
| 駐車場 | 4台 | 地目 | 宅地 |
| 引き渡し | - | 接道方向 / 道路幅員 | - |
| 土地権利 | 所有 | 都市計画 | - |
| 用途地域 | - | 建物構造 | RC(鉄筋コンクリート造) |
| 取引態様 | 専属専任媒介 | 所在地 | 宮古島市平良字久貝 地図 |
| 建ぺい率 / 容積率 | - / - | 交通 | - |
| 価格備考 | - | ||
| 更新日 | 2025/10/28 | 公開期限 | 2025/11/10 |
物件備考
| 備考 | ・和室の離れ(56.52㎡)があります。 ■現況: 空き家 |
|---|
【うちなーらいふ】は、より正確な情報の提供を心がけておりますが、物件情報に誤りがある場合は、ご連絡をお願い致します。
ご報告いただいた内容につきましては、掲載提供元である不動産会社に直接送信させていただきます。情報が不足している場合や、事実確認ができない場合などは対応できない場合がございます。
間違いを報告する

















