オーナーチェンジ物件。月19.8万円の家賃収入で表面利回り5.65%!人気の平屋新築出ました。鉄筋コンクリートで土地78.59坪あります。担当→08064809384
物件情報
| 価格 | 4,200万円 | 階数 | 1階建て |
|---|---|---|---|
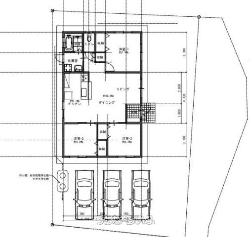
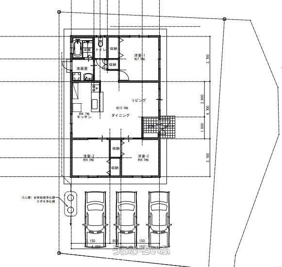
| 間取り | 3LDK ( 洋6 洋6 洋7.5 LDK19.5) | ||
| 建物面積 | 82.8m² / 25.05坪 | 土地面積 | 259.8m² / 78.59坪 |
| 私道負担 | 無し | 築年月 | 2020年12月(築5年) |
| 駐車場 | 5台 | 地目 | 宅地 |
| 引き渡し | 相談 | 接道方向 / 道路幅員 | 南6.2m |
| 土地権利 | 所有 | 都市計画 | 非線引 |
| 用途地域 | 未指定 | 建物構造 | RC(鉄筋コンクリート造) |
| 取引態様 | 専任媒介 | 所在地 | 南城市玉城字愛地 地図 |
| 建ぺい率 / 容積率 | 70% / 200% | 交通 | 【バス停】愛地入口: 徒歩約5分 |
| 価格備考 | 家賃19.8万円。年間237万6000円の収入。 | ||
| 更新日 | 2026/03/10 | 公開期限 | 2026/03/23 |
この物件の設備・条件
| キッチン | 給湯 、 ガスコンロ 、 対面式キッチン(カウンターキッチン) 、 システムキッチン |
|---|---|
| バス・トイレ | バス/トイレ別 、 ユニットバス 、 浴槽 、 独立洗面所 |
| 室内設備 | 室内洗濯機置き場 |
| 建物設備 | 上水道 |
物件備考
| 備考 | オーナーチェンジ物件。月19.8万円の家賃収入で表面利回り5.65%!人気の平屋新築出ました。鉄筋コンクリートで土地78.59坪あります。担当→08064809384 ■現況: 建築中 ■建築確認番号: 2019-881号 |
|---|
【うちなーらいふ】は、より正確な情報の提供を心がけておりますが、物件情報に誤りがある場合は、ご連絡をお願い致します。
ご報告いただいた内容につきましては、掲載提供元である不動産会社に直接送信させていただきます。情報が不足している場合や、事実確認ができない場合などは対応できない場合がございます。
間違いを報告する







