◆2025年築省エネ水準住宅!カーポート完備!◆【室内吹き抜け有り解放感・オシャレ度高いです!】★広々パントリー有り★区画整理地内★前面道路広々★静かな周辺環境★
売買一戸建て糸満市糸満 3LDK
価格 5,980万円
物件情報
| 価格 | 5,980万円 | 階数 | 2階建て |
|---|---|---|---|
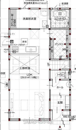
| 間取り | 3LDK ( 洋10.5 洋5.2 洋5 LDK18) | ||
| 建物面積 | 101.4m² / 30.67坪 | 土地面積 | 116m² / 35.08坪 |
| 私道負担 | 無し | 築年月 | 2025年01月(築1年) |
| 駐車場 | 2台 ※カーポート完備 | 地目 | 宅地 |
| 引き渡し | 相談 | 接道方向 / 道路幅員 | - |
| 土地権利 | 所有 | 都市計画 | 市街化区域 |
| 用途地域 | 第一種中高層 | 建物構造 | 木造 |
| 取引態様 | 専属専任媒介 | 所在地 | 糸満市糸満 |
| 建ぺい率 / 容積率 | 60% / 150% | 交通 | - |
| 価格備考 | - | ||
| 更新日 | 2026/05/01 | 公開期限 | 2026/05/14 |
この物件の設備・条件
| キッチン | 給湯 、 ガスコンロ 、 コンロ三口以上 、 対面式キッチン(カウンターキッチン) 、 システムキッチン 、 パントリー(食器・食品の収納庫) 、 食器洗乾燥機 |
|---|---|
| バス・トイレ | バス/トイレ別 、 ユニットバス 、 浴槽 、 シャンプードレッサー 、 独立洗面所 、 浴室乾燥機 、 温水洗浄便座 |
| セキュリティ | インターフォン 、 TVホン(TVモニタ付インターホン) 、 防犯用ガラス |
| 室内設備 | 室内洗濯機置き場 |
| 収納 | ウォークインクローゼット 、 シューズボックス 、 床下収納 、 全居室収納 |
| 立地・土地特徴 | 南道路 、 整形地 、 平坦地 、 南向き |
| 建物設備 | 上水道 、 下水道 、 複層ガラス 、 吹抜 |
| 構造 | デザイナーズ 、 二世帯住宅 |
| その他条件 | 日当たり良し 、 静かな場所 |
| 設備備考 | カーポート |
物件備考
| 備考 | ■現況: 所有者居住中 |
|---|
【掲載物件について】
・「うちなーらいふ」は、より正確な情報の提供を心がけておりますが、物件情報に誤りがある場合は、ご連絡をお願い致します。
・ご報告いただいた内容につきましては、掲載提供元である不動産会社に直接送信させていただきます。情報が不足している場合や、事実確認ができない場合などは対応できない場合がございます。
・本フォームは物件情報の誤りに関する報告専用です。賃貸・売買に関するお問い合わせには対応しておりませんので、あらかじめご了承ください。
こちらをクリックして物件の間違いを報告する。











