☆南風原南インター近くの好立地にお手頃価格の住宅用地販売中☆【土日・祝祭日ご内覧可能です♪】★南風原役場すぐ近くです★二世帯住宅向けです♪空室の為、即日案内可能です!土曜・日曜・祝日など仕事終わりでも大丈夫です!!なかなか出ないエリアなので早めのお問い合わせお待ちしてます♪
売買一戸建て南風原町本部 6LDK
価格 4,800万円
物件情報
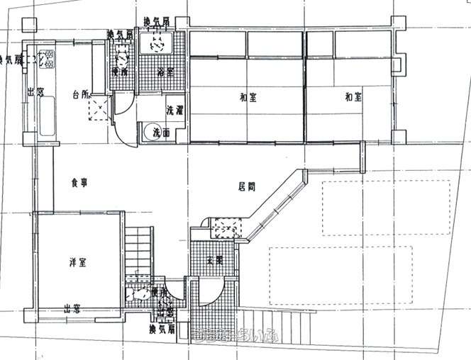
| 価格 | 4,800万円 | 階数 | 2階建て |
|---|---|---|---|
| 間取り | 6LDK | ||
| 建物面積 | 129.53m² / 39.18坪 | 土地面積 | 164.47m² / 49.75坪 |
| 私道負担 | - | 築年月 | 1997年05月(築28年) |
| 駐車場 | 2台 並列 | 地目 | 宅地 |
| 引き渡し | 相談 | 接道方向 / 道路幅員 | 東、 南 |
| 土地権利 | 所有 | 都市計画 | 市街化区域 |
| 用途地域 | 第二種低層 | 建物構造 | RCB(鉄筋コンクリートブロック造) |
| 取引態様 | 仲介 | 所在地 | 南風原町本部 |
| 建ぺい率 / 容積率 | 50% / 100% | 交通 | 【バス停】南風原町役場前: 徒歩約5分 |
| 価格備考 | - | ||
| 更新日 | 2026/04/04 | 公開期限 | 2026/04/17 |
この物件の設備・条件
| キッチン | ガスコンロ |
|---|---|
| バス・トイレ | バス/トイレ別 、 浴槽 、 独立洗面所 、 トイレ2ヶ所 |
| セキュリティ | インターフォン |
| 室内設備 | 室内洗濯機置き場 |
| 立地・土地特徴 | 角地 |
| 建物設備 | 上水道 |
| 構造 | 二世帯住宅 |
| その他条件 | 静かな場所 |
物件備考
| 備考 | ■現況: 空き家 |
|---|
【掲載物件について】
・「うちなーらいふ」は、より正確な情報の提供を心がけておりますが、物件情報に誤りがある場合は、ご連絡をお願い致します。
・ご報告いただいた内容につきましては、掲載提供元である不動産会社に直接送信させていただきます。情報が不足している場合や、事実確認ができない場合などは対応できない場合がございます。
・本フォームは物件情報の誤りに関する報告専用です。賃貸・売買に関するお問い合わせには対応しておりませんので、あらかじめご了承ください。
こちらをクリックして物件の間違いを報告する。
































