◆ビーチまで徒歩約2分!◆
★宮古島の楽園ライフを現実に!★ビーチまで徒歩わずか約2分、極上のプライベートヴィラが驚きの価格改定!★
★約270坪の広大な敷地に建つ築浅の2棟ヴィラ★ひとつはゲスト用宿泊施設、もうひとつはオーナーズヴィラとして「住む × 貸す」どちらも叶える理想のデュアルスタイル★さらにはご利用しない期間は宿泊施設として管理会社に運用を委託すれば維持費をカバーすることも可能となります★南国の空と海を独占する贅沢★今、この価格で手に入るのは“奇跡”です★内覧は予約が必要となります。ご希望の方はお早めにお問い合わせください★
物件情報
| 価格 | 1億7,800万円 | 階数 | 1階建て |
|---|---|---|---|
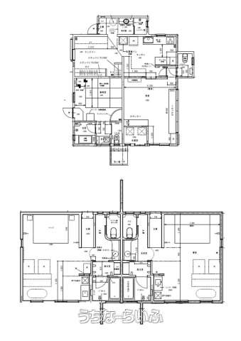
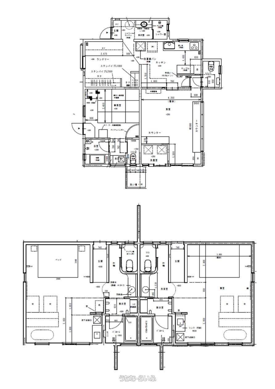
| 間取り | 3SLDK ( ※①A棟(海側):1R約43㎡×2部屋 ②B棟:1SLDK約83㎡) | ||
| 建物面積 | 170.16m² / 51.47坪 | 土地面積 | 897.36m² / 271.45坪 |
| 私道負担 | 無し | 築年月 | 2024年09月(築1年) |
| 駐車場 | 10台 | 地目 | 宅地 |
| 引き渡し | 相談 | 接道方向 / 道路幅員 | 南西4m、 北西4m |
| 土地権利 | 所有 | 都市計画 | 非線引 |
| 用途地域 | 無指定 | 建物構造 | CB(コンクリート・ブロック造) |
| 取引態様 | 仲介 | 所在地 | 宮古島市平良字狩俣 地図 |
| 建ぺい率 / 容積率 | 60% / 200% | 交通 | 【バス停】狩俣: 徒歩約7分 |
| 価格備考 | - | ||
| 更新日 | 2026/02/03 | 公開期限 | 2026/02/16 |
この物件の設備・条件
| キッチン | 給湯 、 コンロ三口以上 、 システムキッチン 、 パントリー(食器・食品の収納庫) 、 食器洗乾燥機 |
|---|---|
| バス・トイレ | バス/トイレ別 、 ユニットバス 、 浴槽 、 独立洗面所 、 浴室1坪以上 、 タンクレストイレ 、 温水洗浄便座 |
| 家具・家電 | 冷房 、 暖房 |
| セキュリティ | インターフォン 、 24時間セキュリティ |
| 室内設備 | 室内洗濯機置き場 |
| 立地・土地特徴 | 角地 、 隣の建物との間隔が広い 、 南向き |
| 建物設備 | 上水道 、 太陽光発電システム 、 複層ガラス 、 プロパンガス 、 南面バルコニー 、 庭付き 、 庭10坪以上 |
| 構造 | 全居室6畳以上 |
| 評価・証明書 | 完了検査済証 、 新築時・増改築時の設計図あり |
| 駐車場 | 駐輪場 |
| その他条件 | 海が見える 、 日当たり良し 、 眺望良し 、 静かな場所 |
| 設備備考 | ・トイレ:4ヶ所・バスルーム3ヶ所+シャワールーム1ヶ所ございます。 |
物件備考
| 備考 | ★現在、宿泊施設として稼働中★ ■現況: 完成済 |
|---|
【うちなーらいふ】は、より正確な情報の提供を心がけておりますが、物件情報に誤りがある場合は、ご連絡をお願い致します。
ご報告いただいた内容につきましては、掲載提供元である不動産会社に直接送信させていただきます。情報が不足している場合や、事実確認ができない場合などは対応できない場合がございます。
間違いを報告する

































