沖縄北インターまで車で2分の新築デザイナーズ住宅です。価格は4,398万円、間取りは全居室収納付きのゆとりある4LDKで、機能的な設計が魅力です。
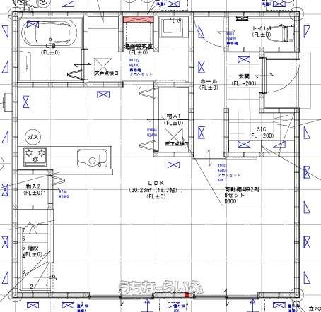
最大の特徴は、並列・縦列合わせて3台分の駐車スペースを確保している点です。南向きで南道路に面しているため日当たりも良好。建物は制震構造を採用した低炭素住宅で、バリアフリーにも配慮されています。
設備面も非常に充実しており、食洗機やパントリー完備の対面キッチン、シューズインクローク、EV車充電設備などを標準装備。1坪以上の広々とした浴室やタンクレストイレなど、快適な暮らしを支える最新の仕様が揃っています。省エネ性能とデザイン性を兼ね備えた、子育て世帯にもおすすめの物件です。
物件情報
| 価格 | 4,398万円 | 階数 | 2階建て |
|---|---|---|---|
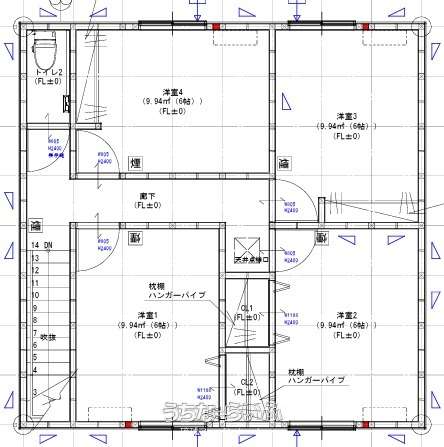
| 間取り | 4LDK | ||
| 建物面積 | 104.54m² / 31.62坪 | 土地面積 | 138.31m² / 41.83坪 |
| 私道負担 | - | 築年月 | 2025年10月(新築) |
| 駐車場 | 3台 縦列 並列 | 地目 | 宅地 |
| 引き渡し | 相談 | 接道方向 / 道路幅員 | 北、 北東、 東4m、 南東、 南4m、 南西、 西、 北西 |
| 土地権利 | 所有 | 都市計画 | 市街化区域 |
| 用途地域 | 無指定 | 建物構造 | 木造 |
| 取引態様 | 売主 | 所在地 | 沖縄市登川 地図 |
| 建ぺい率 / 容積率 | 70% / 200% | 交通 | - |
| 価格備考 | - | ||
| 更新日 | 2026/01/29 | 公開期限 | 2026/02/11 |
この物件の設備・条件
| キッチン | 省エネ給湯器 、 浄水器 、 ガスコンロ 、 対面式キッチン(カウンターキッチン) 、 パントリー(食器・食品の収納庫) 、 食器洗乾燥機 |
|---|---|
| バス・トイレ | バス/トイレ別 、 ユニットバス 、 浴槽 、 シャンプードレッサー 、 追焚機能 、 浴室乾燥機 、 浴室1坪以上 、 浴室暖房 、 トイレ2ヶ所 、 タンクレストイレ 、 温水洗浄便座 |
| 家具・家電 | 冷房 、 暖房 、 乾燥機 |
| セキュリティ | インターフォン 、 TVホン(TVモニタ付インターホン) 、 ディンプルキー |
| 室内設備 | 室内洗濯機置き場 |
| 通信設備 | BSアンテナ |
| 収納 | シューズインクローク 、 床下収納 、 全居室収納 、 階段下収納 |
| 立地・土地特徴 | 南道路 、 南向き |
| 建物設備 | 上水道 、 下水道 、 EV車充電設備 、 複層ガラス 、 24時間換気システム 、 プロパンガス 、 オール洋間 |
| 構造 | バリアフリー 、 デザイナーズ 、 制震構造 、 ノンホルムアルデヒド 、 低炭素住宅 |
| 瑕疵保証あり | 瑕疵保険(国交省指定法人)による保証 |
物件備考
| 備考 | 【新築】沖縄市登川に誕生した「低炭素×制震」の高性能デザイナーズ住宅(4LDK) 暮らしの質をワンランク引き上げる、機能美にこだわった新築一戸建てが登場しました。 家計と環境に優しい「低炭素住宅」認定に加え、地震の揺れを吸収する「制震構造」を採用。長く安心してお住まいいただける住性能を確保しています。 ■この物件の注目ポイント ゆとりの駐車スペース:並列・縦列合わせて最大3台の駐車が可能。セカンドカーや来客時も安心です。 充実の家事ラク設備:食洗機・パントリー完備の対面キッチン。シューズインクローク(SIC)や全居室収納など、片付けがスムーズになる設計です。 南向きの明るい住まい:南道路に面しており、陽当たり・通風ともに良好。全室洋間のモダンなレイアウトです。 次世代仕様の設備:EV(電気自動車)充電設備や、お掃除しやすいタンクレストイレ、浴室乾燥機など最新設備を標準装備。 バリアフリー設計のため、小さなお子様からご年配の方まで快適にお過ごしいただけます。周辺環境と合わせて、ぜひ実際の空間をご体感ください。 ■現況: 完成済 |
|---|
【うちなーらいふ】は、より正確な情報の提供を心がけておりますが、物件情報に誤りがある場合は、ご連絡をお願い致します。
ご報告いただいた内容につきましては、掲載提供元である不動産会社に直接送信させていただきます。情報が不足している場合や、事実確認ができない場合などは対応できない場合がございます。
間違いを報告する


































