🌺AHC沖縄🌺4号棟【2月末頃完成予定!当物件1~3号棟ご案内可能です◎】◆北美小学校まで徒歩圏内・スーパーや病院も近く!◆パントリーやWICなど充実した収納◆ハイグレードな建売を選ぶならAHC沖縄🏠◆
パノラマ画像
物件情報
| 価格 | 4,398万円 | 階数 | 2階建て |
|---|---|---|---|
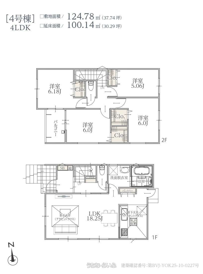
| 間取り | 4LDK ( 洋6.1 洋6 洋6 洋5 LDK18.2 ※パントリー、シューズインクローク、ウォークインクローゼット) | ||
| 建物面積 | 100.14m² / 30.29坪 | 土地面積 | 124.78m² / 37.74坪 |
| 私道負担 | 無し | 築年月 | 2026年03月(新築) |
| 駐車場 | 2台 | 地目 | 宅地 |
| 引き渡し | 指定有 (建物完成後) | 接道方向 / 道路幅員 | 北、 北東、 東、 南東、 南、 南西、 西4m、 北西 |
| 土地権利 | 所有 | 都市計画 | 市街化区域 |
| 用途地域 | 未指定 | 建物構造 | 木造 |
| 取引態様 | 売主 | 所在地 | 沖縄市登川 地図 |
| 建ぺい率 / 容積率 | 70% / 200% | 交通 | - |
| 価格備考 | 【銀行事前審査 必要書類】 ・運転免許証 ・健康保険証 ・前年度源泉徴収票 ・返済予定表(借入がある場合) 【購入時発生費用】 ・建物本体費用(外構費も含む) ・登記費用(表示登記、保存・抵当権登記) ・火災保険費用 ・固定資産税日割り計算費用 ・銀行手数料 ・保証料 ・印紙代 | ||
| 更新日 | 2026/03/21 | 公開期限 | 2026/04/03 |
この物件の設備・条件
| キッチン | 給湯 、 浄水器 、 ガスコンロ 、 コンロ三口以上 、 対面式キッチン(カウンターキッチン) 、 システムキッチン 、 パントリー(食器・食品の収納庫) 、 食器洗乾燥機 |
|---|---|
| バス・トイレ | バス/トイレ別 、 ユニットバス 、 浴槽 、 シャンプードレッサー 、 独立洗面所 、 追焚機能 、 浴室乾燥機 、 浴室1坪以上 、 浴室暖房 、 トイレ2ヶ所 、 温水洗浄便座 |
| セキュリティ | インターフォン 、 TVホン(TVモニタ付インターホン) 、 ディンプルキー 、 防犯用ガラス |
| 室内設備 | 室内洗濯機置き場 |
| 収納 | ウォークインクローゼット 、 シューズボックス 、 床下収納 、 全居室収納 |
| 立地・土地特徴 | 整形地 |
| 建物設備 | 上水道 、 複層ガラス 、 24時間換気システム 、 宅配ボックス 、 プロパンガス 、 オール洋間 |
| 構造 | ノンホルムアルデヒド 、 全室2面採光 |
| 評価・証明書 | フラット35・S適合証明書あり |
| 瑕疵保証あり | 瑕疵保険(国交省指定法人)による保証 |
| その他条件 | 日当たり良し 、 静かな場所 |
物件備考
| 備考 | ≪当物件 周辺環境≫ ■北美小学校まで徒歩12分 ■美里中学校まで車で5分 ■タウンプラザかねひでまで車で4分 ■ファーマーズマーケットまで車で3分 ■中頭病院まで車で4分 ■登川公園まで車で3分 ■ニトリ宜野湾店まで車で3分 ≪完成物件、ご内覧可能です!≫ 土日祝はもちろん、平日のお仕事帰りや当日のお問い合わせもお気軽にご連絡ください! 柔軟に対応いたします! 未完成物件につきましても、仕様等ご説明いたしますのでお気軽にお問い合わせください♪ “人生最大の買い物”と言われるマイホームの購入… 初期費用はどれくらいかかるんだろう かかる税金は?軽減措置はあるの? 沖縄で木造住宅は不安… そもそも住宅を購入するには何から始めればいいの? そんなお客様それぞれのお悩み・ご相談に、誠心誠意お答えいたします! AHC沖縄は、神奈川県を中心に主に木造戸建て住宅の建売事業を手がけ、 これまでに1万棟以上の分譲実績・経験を積んできたAHSホールディングスの一員です。 長年培われたノウハウを活かし、土地の仕入から設計・施工・販売まで、自社一貫管理することで 出来る限りコストを抑え、お客様に良質な住宅を提供しております。 また自社一貫管理ゆえに、不動産の様々な分野を経験した営業スタッフに加え、設計士や施工管理も在籍しております。 お客様と同じ目線に立つことはもちろん、売主だからこそ伝えられる情報も惜しみなくお伝えいたします! お問い合わせお待ちしております☆彡 ■現況: 建築中 ■建築確認番号: 第BVJ-YOK25-10-0227号 |
|---|
【掲載物件について】
・「うちなーらいふ」は、より正確な情報の提供を心がけておりますが、物件情報に誤りがある場合は、ご連絡をお願い致します。
・ご報告いただいた内容につきましては、掲載提供元である不動産会社に直接送信させていただきます。情報が不足している場合や、事実確認ができない場合などは対応できない場合がございます。
・本フォームは物件情報の誤りに関する報告専用です。賃貸・売買に関するお問い合わせには対応しておりませんので、あらかじめご了承ください。
こちらをクリックして物件の間違いを報告する。






































