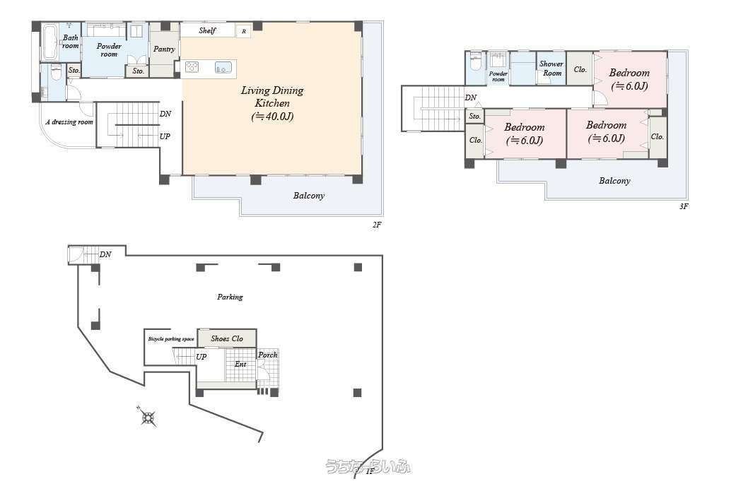
【三方角地ならではの陽光と開放感が魅力の2018年築RC造邸宅】■南東・南西の二面バルコニーで日当たり良好、明るく心地よい空間■約29帖の広々LDKは開放感と機能性を追求■全居室6帖以上でゆとりある間取り■シューズクロークやパントリーなど収納スペースが豊富■食器洗乾燥機など先進設備を採用し快適な暮らしをサポート■RC造ならではの堅牢性と静謐な住環境で安心の毎日■生活利便施設が徒歩圏内に充実
物件情報
| 価格 | 1億3,900万円 | 階数 | 3階建て |
|---|---|---|---|
| 間取り | 4LDK ( 洋7 洋6 洋6 洋6 LDK29) | ||
| 建物面積 | 182.31m² / 55.14坪 | 土地面積 | 219.76m² / 66.47坪 |
| 私道負担 | 無し | 築年月 | 2018年01月(築8年) |
| 駐車場 | 1台 | 地目 | 宅地 |
| 引き渡し | 相談 | 接道方向 / 道路幅員 | 南東4m、 南西6m、 北西6m |
| 土地権利 | 所有 | 都市計画 | 市街化区域 |
| 用途地域 | 第一種低層 | 建物構造 | RC(鉄筋コンクリート造) |
| 取引態様 | 仲介 | 所在地 | 那覇市古島2丁目 |
| 建ぺい率 / 容積率 | 50% / 150% | 交通 | 【モノレール】市立病院前駅: 徒歩約6分 |
| 価格備考 | - | ||
| 更新日 | 2026/03/14 | 公開期限 | 2026/03/27 |
この物件の設備・条件
| キッチン | 対面式キッチン(カウンターキッチン) 、 システムキッチン |
|---|---|
| バス・トイレ | バス/トイレ別 、 トイレ2ヶ所 |
| 室内設備 | 室内洗濯機置き場 |
| 収納 | 全居室収納 |
| 立地・土地特徴 | 角地 、 南向き |
| 建物設備 | 上水道 、 下水道 、 都市ガス 、 オール洋間 |
| 駐車場 | 駐輪場 |
| その他条件 | 日当たり良し 、 静かな場所 |
物件備考
| 備考 | ■現況: 空き家 |
|---|
【掲載物件について】
・「うちなーらいふ」は、より正確な情報の提供を心がけておりますが、物件情報に誤りがある場合は、ご連絡をお願い致します。
・ご報告いただいた内容につきましては、掲載提供元である不動産会社に直接送信させていただきます。情報が不足している場合や、事実確認ができない場合などは対応できない場合がございます。
・本フォームは物件情報の誤りに関する報告専用です。賃貸・売買に関するお問い合わせには対応しておりませんので、あらかじめご了承ください。
こちらをクリックして物件の間違いを報告する。リストインターナショナルリアルティ株式会社
| 住所 | 沖縄県那覇市前島 2-21-13 ふそうビルディング6階 地図 |
|---|---|
| 営業時間 | 10:00〜18:00 |
| 定休日 | 火曜日 水曜日 |
| 免許 | 国土交通大臣免許 (3)8544 |




































