【価格変更しました】強度の高い鉄筋コンクリート造!閑静な住宅街の中古住宅!北丘小学校まで徒歩9分!太陽光発電付き!2台目駐車場確保(徒歩2分)!※敷地内駐車場:軽自動車2台縦列可!
日程調整の上、内覧可能です!お気軽にお問い合わせください!
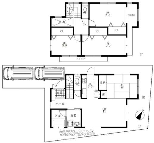
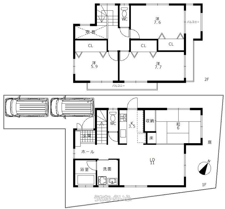
売買一戸建て南風原町宮平 4LDK
価格 3,290万円
物件情報
| 価格 | 3,290万円 | 階数 | 2階建て |
|---|---|---|---|
| 間取り | 4LDK ( 洋7.7 洋7.6 洋5.9 和6 LDK14.5) | ||
| 建物面積 | 100.8m² / 30.49坪 | 土地面積 | 113.23m² / 34.25坪 |
| 私道負担 | 無し | 築年月 | 2002年07月(築23年) |
| 駐車場 | 1台 •付近有り2台目4,000円 ※敷地内駐車場:軽自動車2台可能(縦列) | 地目 | 宅地 |
| 引き渡し | 相談 | 接道方向 / 道路幅員 | 西5m |
| 土地権利 | 所有 | 都市計画 | 市街化区域 |
| 用途地域 | 第一種低層 | 建物構造 | RC(鉄筋コンクリート造) |
| 取引態様 | 専任媒介 | 所在地 | 南風原町宮平 地図 |
| 建ぺい率 / 容積率 | 50% / 100% | 交通 | 【バス停】当間原: 徒歩約8分 |
| 価格備考 | - | ||
| 更新日 | 2026/02/03 | 公開期限 | 2026/02/16 |
この物件の設備・条件
| キッチン | IHコンロ 、 システムキッチン |
|---|---|
| バス・トイレ | バス/トイレ別 、 浴槽 、 トイレ2ヶ所 、 温水洗浄便座 |
| 家具・家電 | 乾燥機 |
| 室内設備 | 室内洗濯機置き場 |
| 収納 | 全居室収納 、 階段下収納 |
| 立地・土地特徴 | 敷地延長・変形地 |
| 建物設備 | 上水道 、 下水道 、 太陽光発電システム 、 プロパンガス 、 庭付き 、 吹抜 |
| 構造 | デザイナーズ 、 全室2面採光 |
| 駐車場 | 駐輪場 |
| その他条件 | 静かな場所 |
物件備考
| 備考 | ■イオン南風原店・・・徒歩12分 ■丸大南風原店・・・・徒歩11分 ■北丘小学校・・・・・徒歩9分 ■南風原中学校・・・・徒歩16分 ■リフォーム相談受付けております。お気軽にお問合せください! ■現況: 所有者居住中 |
|---|
【うちなーらいふ】は、より正確な情報の提供を心がけておりますが、物件情報に誤りがある場合は、ご連絡をお願い致します。
ご報告いただいた内容につきましては、掲載提供元である不動産会社に直接送信させていただきます。情報が不足している場合や、事実確認ができない場合などは対応できない場合がございます。
間違いを報告する













