国道330すぐにある2階建、1階倉庫、2階住宅4LDK、賃貸アパート(3DK×1、2K×2)付属!店舗・事務所兼住宅、収益物件、ご希望の用途で使用可能!
物件情報
| 価格 | 7,200万円 | 階数 | 2階建て |
|---|---|---|---|
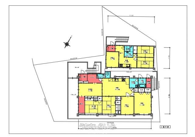
| 間取り | 4LDK ( 洋11 洋6.9 和7 和7 LDK24.3) | ||
| 建物面積 | 255.59m² / 77.32坪 | 土地面積 | 436.61m² / 132.07坪 |
| 私道負担 | 無し | 築年月 | 1980年08月(築45年) |
| 駐車場 | 3台 並列 | 地目 | 宅地 |
| 引き渡し | 相談 | 接道方向 / 道路幅員 | 南東3m、 南西3.2m |
| 土地権利 | 所有 | 都市計画 | 市街化区域 |
| 用途地域 | 第一種低層 | 建物構造 | CB(コンクリート・ブロック造) |
| 取引態様 | 専任媒介 | 所在地 | 宜野湾市上原2丁目 地図 |
| 建ぺい率 / 容積率 | 50% / 100% | 交通 | 【バス停】中原: 徒歩約3分 |
| 価格備考 | - | ||
| 更新日 | 2026/04/27 | 公開期限 | 2026/05/10 |
物件備考
| 備考 | ■現況: 空き家 |
|---|
【掲載物件について】
・「うちなーらいふ」は、より正確な情報の提供を心がけておりますが、物件情報に誤りがある場合は、ご連絡をお願い致します。
・ご報告いただいた内容につきましては、掲載提供元である不動産会社に直接送信させていただきます。情報が不足している場合や、事実確認ができない場合などは対応できない場合がございます。
・本フォームは物件情報の誤りに関する報告専用です。賃貸・売買に関するお問い合わせには対応しておりませんので、あらかじめご了承ください。
こちらをクリックして物件の間違いを報告する。







