読谷村シーレイク座喜味内のプール付き・サウナ完備の住宅★旅館業取得して宿泊施設として運営中♪年間売上1,400万円以上有ります★家具家電付です♪マイホームとしても使用できます♪
売買一戸建て読谷村座喜味 4SLDK
価格 1億6,800万円
物件情報
| 価格 | 1億6,800万円 | 階数 | 1階建て | 
|---|---|---|---|
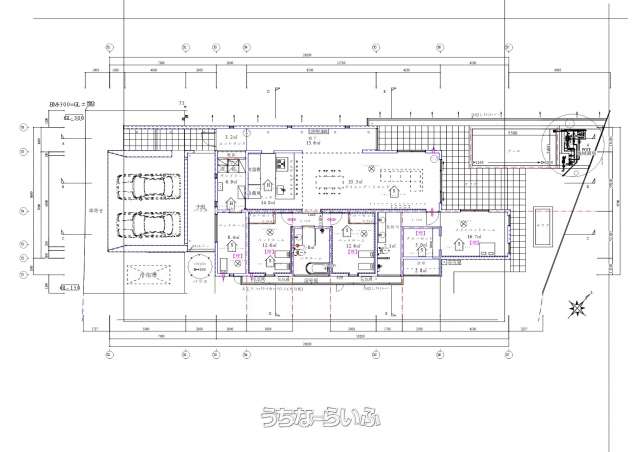
| 間取り | 4SLDK ( 洋13 洋8 洋8 洋5 SLDK30) | ||
| 建物面積 | 149.82m² / 45.32坪 | 土地面積 | 387.29m² / 117.16坪 | 
| 私道負担 | - | 築年月 | 2014年11月(築10年) | 
| 駐車場 | 4台 並列 | 地目 | 宅地 | 
| 引き渡し | 相談 | 接道方向 / 道路幅員 | 西 | 
| 土地権利 | 所有 | 都市計画 | 非線引 | 
| 用途地域 | 未指定 | 建物構造 | RC(鉄筋コンクリート造) | 
| 取引態様 | 専属専任媒介 | 所在地 | 読谷村座喜味 地図 | 
| 建ぺい率 / 容積率 | 50% / 100% | 交通 | - | 
| 価格備考 | - | ||
| 更新日 | 2025/10/27 | 公開期限 | 2025/11/09 | 
この物件の設備・条件
| キッチン | 給湯 、 ガスコンロ 、 対面式キッチン(カウンターキッチン) 、 パントリー(食器・食品の収納庫) | 
|---|---|
| バス・トイレ | 浴槽 、 浴室乾燥機 、 浴室1坪以上 、 トイレ2ヶ所 | 
| 家具・家電 | 冷房 、 暖房 、 洗濯機 、 乾燥機 、 冷蔵庫 、 テレビ 、 家具/家電付き | 
| 室内設備 | 室内洗濯機置き場 | 
| 立地・土地特徴 | 平坦地 | 
| 建物設備 | 上水道 、 プロパンガス 、 庭付き 、 庭10坪以上 | 
| 構造 | 外人住宅 、 バリアフリー | 
| 評価・証明書 | 完了検査済証 | 
| その他条件 | 日当たり良し 、 静かな場所 | 
| 設備備考 | プール・サウナ完備 | 
物件備考
| 備考 | 稼働率好調♪♪利回り8.3% ■現況: 賃貸中 | 
|---|
【うちなーらいふ】は、より正確な情報の提供を心がけておりますが、物件情報に誤りがある場合は、ご連絡をお願い致します。
ご報告いただいた内容につきましては、掲載提供元である不動産会社に直接送信させていただきます。情報が不足している場合や、事実確認ができない場合などは対応できない場合がございます。
間違いを報告する
 住居用
 住居用 事業用
 事業用 土地
 土地 駐車場
 駐車場 土地
 土地 マンション
 マンション 一戸建て
 一戸建て その他
 その他






